The Office as a Design Playground by Jagnus Design Studio
Prospective clients and visitors seeing the Jagnus Design Studio office entrance for the first time will probably ask: is this an architecture office? Located at the basement of the playfully designed RONAC Art Center in San Juan (also designed by Jagnus), the office can fool anyone into thinking they’re about to enter a toy store. Colorful objects can be seen through the glass wall, and a stack of huge Lego blocks sits by the entrance, greeting and piquing visitors’ interest.
“Never standard,” says Sonny Sunga when asked to describe their office. Like an upscale coffee shop it has inviting and relaxing spaces, indie and electronic music playing in the background, and a myriad of toys and decor to distract anyone. The duo envisioned a work environment free of the monotony of a corporate office, with play and creativity given the same importance as work and professionalism. Through a neutral material palette, warm white lighting, and the fusion of work and play areas, the studio’s aim is to make its staff of fourteen feel at home.

Spearheaded by Sunga and Arnold Austria, Jagnus Design Studio was born out of the duo’s shared passion for design. Sunga and Austria started as friendly rivals at the University of Santo Tomas, engaging in pleasant competition in their design classes. They were often sources of entertainment to their peers, who would bet on their academic pursuits. They eventually partnered up after graduating and worked in construction for five years, until they rediscovered their love for architecture which motivated them to start their own firm. They’ve since produced an array of projects spanning from commercial centers, residences, furniture, and even objets d’art. Their office is an extension of their personality, passion and drive.
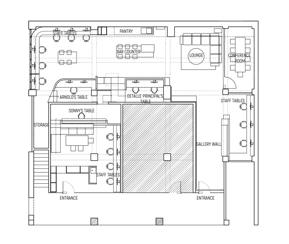
When the firm was starting out, the cut RONAC made available for their office was only 38 square meters, and it was a challenge to fit in all the areas needed to create a fully functional architectural office with three staff members. “I needed a meeting room, a staff area, a pantry, storage space and our (his and Austria’s) own offices/stations,” he says. “Dividing the space with walls was out of the question, so we divided it horizontally instead.” Sunga elevated his booth, giving him a panoptic view of the staff area on one side and the meeting room at the center, clearly establishing office hierarchy while maintaining an open plan that encourages rapport and dialogue between mentor and mentee. “The meeting area used to double as our reception space,” says Sunga. “We even used it as a dining table.”

The growing number of employees eventually forced them to expand to the L-shaped, 120-square meter area that wrapped around the rear of their original office and a neighboring store. Sunga and Austria encourage movement, so they had a pantry in the middle of this extension space complete with kitchen island and bar stools, where everyone can converge and work in if they want to (provided they have their own laptop).

The staff has free rein to work in any area, and they can even de-stress by playing with Austria’s massive collection of toys and comic books. “We always encourage them to find design cues and inspiration from stuff around or outside the office. You never know where solutions can come from,” says Sunga. “Architecture, after all, is a human endeavor, a social art, a profession that deals with people. I don’t want my employees to feel restricted in their interactions.”
READ MORE: The Anti-Archetypal Office by Park+Associates
Despite the emphasis on movement, a typical day in the office is “pretty uneventful, really,” says Sunga. Staff work quietly at their stations, and ideas are exchanged over coffee breaks in the pantry, which is well stocked with food and coffee to fuel the staff during overtime.
“We always encourage them to find design cues and inspiration from stuff around or outside the office. You never know where solutions can come from.” – Sonny Sunga
Advertisement
The expanded office is still too large for the current size of the firm, even with the abundance of common areas, so Sunga and Austria invited Detalle Furniture, a furniture construction company, to share the space with them. It’s a practical decision, as Detalle has done customized furniture for the firm on a number of projects, as well as Austria’s furniture and toys on display at the office, like the Stray chair and Bototoy, a wooden toy robot.

“If I had known from the start that all this space would be offered to us, I would have designed it a bit better,” says Sunga with a laugh. He confesses that a restroom of his own would be nice, as well as a green wall. Nevertheless, he and Austria have created an office dedicated to individuality and creativity, to stimulate the imaginations of employees and clients alike. “I have worked in offices before and I didn’t feel creative in them,” says Sunga. “I feel my most creative here.” ![]()

This story first appeared in BluPrint Volume 4, 2015. Edits were made for Bluprint.ph.