Advertisement
Advertisement
Concept

Breeze Blocks And Nature: Simple Elements, Stand Out Design

June 15, 2022
|
By 
Carisa Magno

Tamara Wibowo Architects completes a house in Semarang, Indonesia, with a breeze block facade on a steep A-frame roof. The custom-designed cement breeze blocks serve as a passive cooling system and a visual filter for privacy. Corten frames protrude from the openings around, increasing the structure’s design with its weathered look.

Trees play an integral part in the facade as they soften the raw concrete’s appearance of the blocks. The leaves were left to grow out and flow through the breeze block’s holes, adding an organic element that changes as nature dictates. Incorporating nature within a building elevates the spirit. It allows one to connect between indoors, outdoors, and the environment.

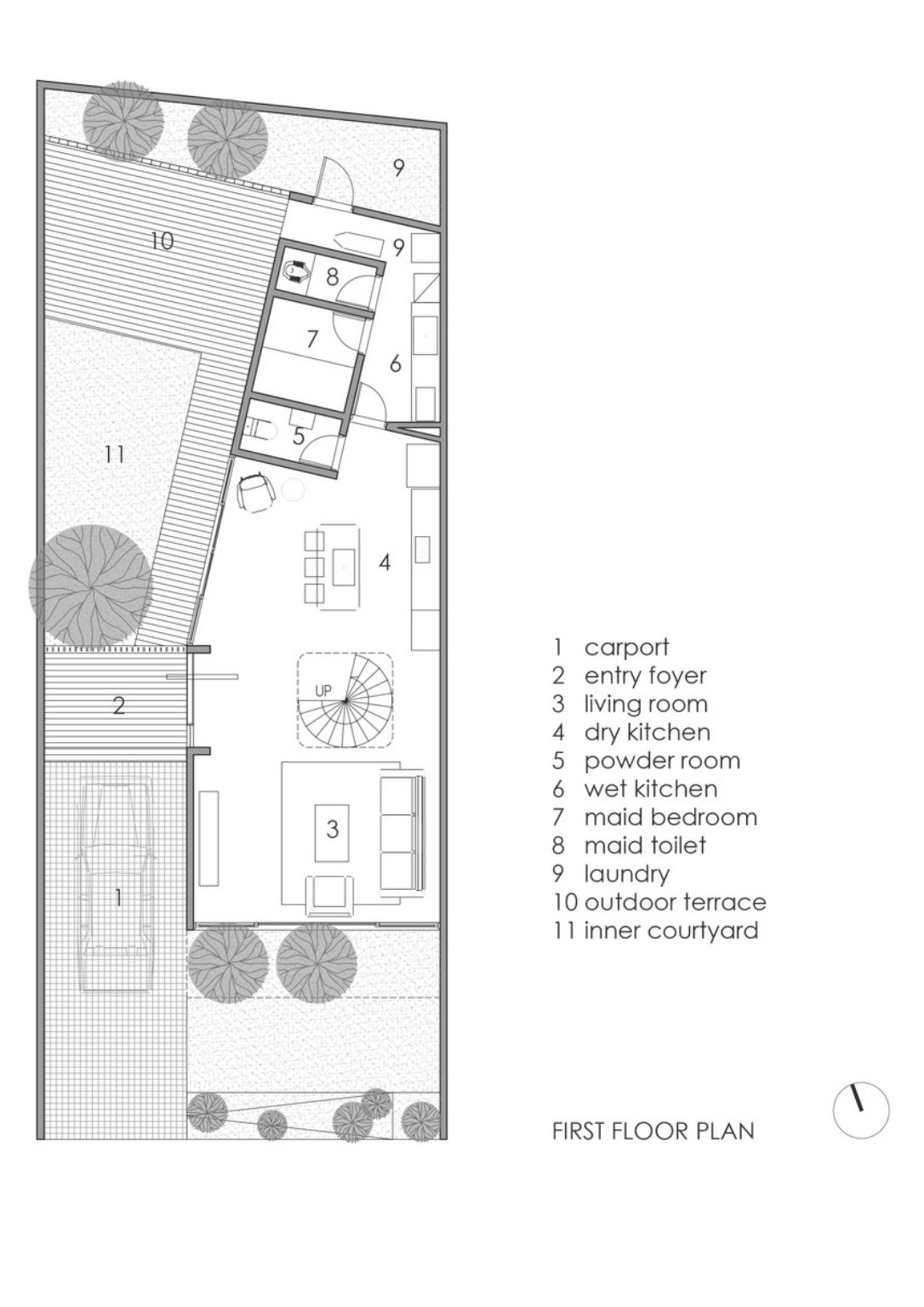
Lush vegetation bounds two sides of the 180-square-meter house with tall walls as boundaries. The said perimeter wall defines the initial design process as it opens the idea of building a courtyard between the wall and the house. The wall forms an essential aspect of the inner courtyard enhanced by the floating mass of the second floor. To add, the floating element at the back of the courtyard further creates a comfortable outdoor dining space that feels like an indoor space as well.

Advertisement

The interior has a white spiral staircase in the middle of the living and kitchen area. It is a focal element that pulls the spaces together and creates a sense of motion inside the residence.

Ultimately, there are two bedrooms on the second level. One on the floating mass above the outdoor dining and the other by the breeze block facade. Both bedrooms have expansive windows that overlook the nature outside. The ground level’s floor is all polished concrete that complements the wood and black accents.

All photos are from Arti Pictures.

Download this month's BLUPRINT magazine digital copy from:
Subscribe via [email protected]

To provide a customized ad experience, we need to know if you are of legal age in your region.

By making a selection, you agree to our Terms & Conditions.