Cove House: A Modest Parade Of Subtropical Architecture
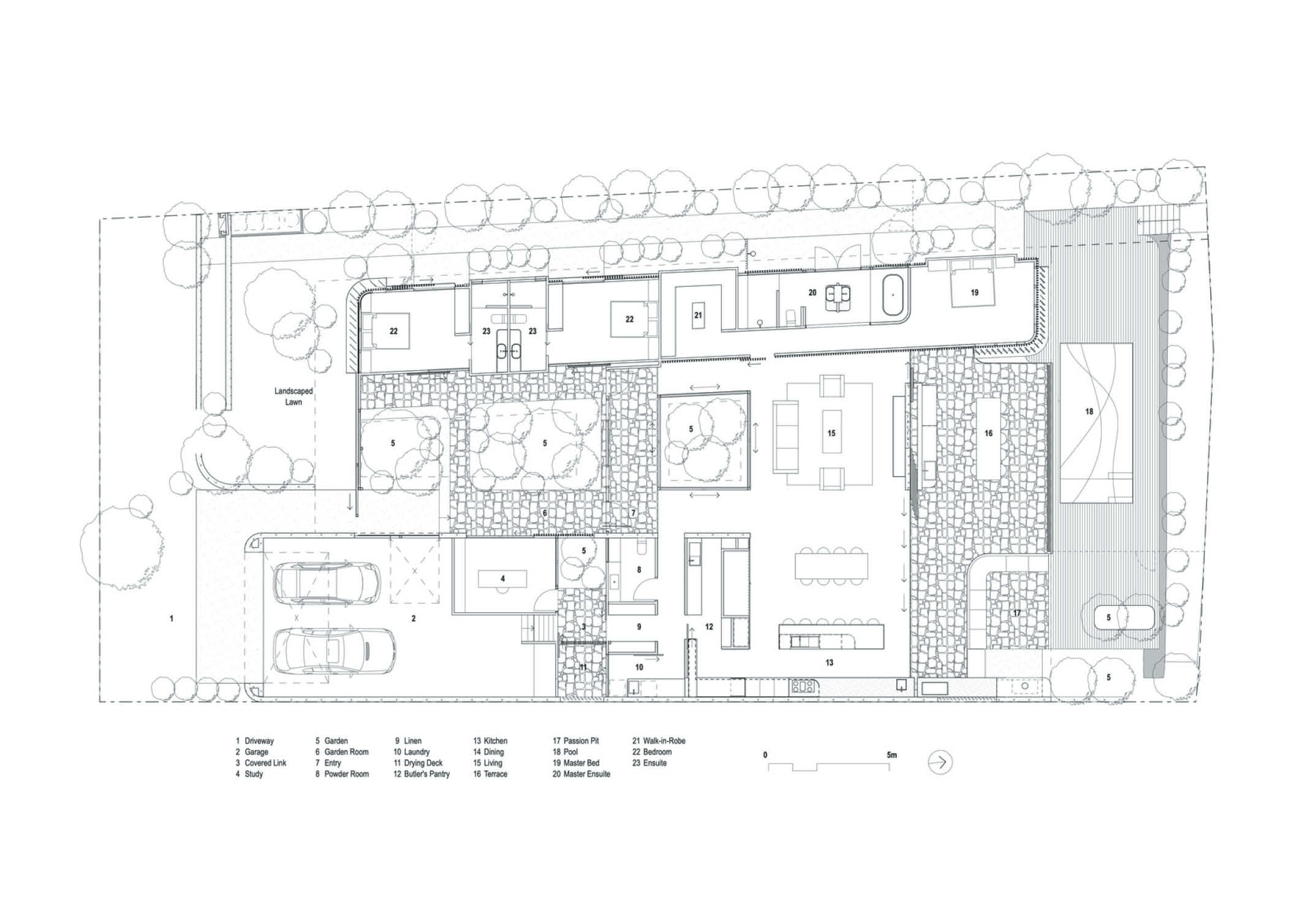
The Cove House, designed by Justin Humphrey Architects, is a tangible probe of the boundaries between public and private space. It is a versatile residence that can accommodate both daily life routines and social gatherings. The client requested a materially rich and tactile home that reflected their passion for subtropical architecture. The team aptly responded by designing a residence with board-formed concrete, timber and a structure where the interior and exterior environment are in perfect harmony. It is a home enjoyed by the clients and a building that elevates the neighborhood.


Cove House’s design demonstrates that layout and architectural form should not be determined by easement planning restrictions. The eastern easement of the property presented an opportunity for Justin Humphrey Architect to create a striking visual statement and establish ties with the surrounding neighborhood. The choice to use board-formed concrete and shape the 470 square-meter house as it is, was made to express and celebrate the limit through an impressive tactile design that encourages engagement and displays the materiality of the house to passing neighbors.



The board-formed concrete that runs along the length of the easement was made to meet the requirements of the brief and the site. It serves as a boundary while directing guests through the house. To minimize the building’s visual size and fit it into its vernacular, the architects designed a roof with a tapering profile that floats above and extends beyond the concrete wall. Through the architectural form and design elements, the house presented a materially-rich space inspired by subtropical architecture.

Although the building’s entrance appears unassuming, the careful attention to detail, the natural palette, and the layering of tangible organic materials create a positive impression as one moves into the interior. The property’s internal garden defies the conventional distinction between private and public spaces. Furthermore, the home’s texture, which consists of board-formed concrete, natural stone, and wood with black accents, exudes masculinity. This is balanced by moderate curves that provide a visual relief and promote movement throughout the interior areas. The balance between the raw and masculine is one of the design’s unifying elements, making the spaces even more appealing.
“The subtle concave profile of the timber battens, the gentle sweep of a concrete wall or the curved joinery found in the master ensuite all soften and add elegance to the project.”
Justin humphrey architectsAdvertisement



The interior spaces of Cove House are enveloped with organic light through the structure’s incisions. These functional elements allowed for a framed view of the waterfront from the interior. In addition, the living room flows flawlessly into an outdoor area designed for social gatherings, blurring the distinction between indoor and outdoor space. To create greater cohesion between the public and private spaces, robust concrete and warm timbers are employed, while natural stone flooring visually distinguishes the communal and exposed outdoor areas.
Photos are from Andy Macpherson Studio.



