This geometric learning center exhibits Thailand’s sustainability ideologies
With nearly 40% of its land dedicated to agriculture, Thailand has been guided by a development approach focused on uplifting rural areas and improving way of life. Dubbed sufficiency economics philosophy, the program helmed by the late King Bhumibol Adulyadej puts sustainability at all levels first. This makes community and learning spaces like the PANNAR Sufficiency Economic and Agriculture Learning Center instrumental to disseminating the philosophy and reinforcing its goals.
Bangkok-based Vin Varavarn Architects was tasked to integrate the core values of the sufficiency economic philopsophy in their design, especially in how they relate to architecture. Among the ideas they explored was whether the buildings should mirror the traditional concepts of rural dwellings like bamboo huts or temporary shacks. They eventually settled with incorporating local craftsmanship and materials, which they wanted to transform into modern designs which are “attractive, well suited for present-day ways of life, durable as well as achieving harmony with the environment.”
The location itself in the Nakhon Ratchasima area proved to be a hotbed of inspiration for the architects. The learning center served as the centerpiece of the 5.7-hectare property, which is surrounded by vast agricultural fields. In line with the sufficiency economics policy, these once arid and rocky areas were transformed into rice fields, reservoirs, fruit farms, vegetable gardens, and animal farming sites.
You may also like: The Scrap House: Merging Sustainability and Functionality
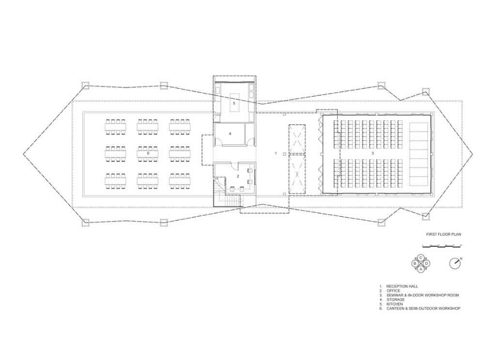
The Activity Center, the two-storey main building and centerpiece of the project, can accommodate up to 100 people. The first floor houses the lobby and reception area, seminar and workshop rooms, a large canteen, and a kitchen. The second floor is comprised of offices and meeting spaces for staff, facilities for trainers and resource persons, and the control room.
The large and open pavilion of the activity center was designed to maximize natural lights and natural ventilation to facilitate various functions and activities. Since it’s meant to serve as a spacious function hall, the pavilion is kept free of furniture and interior elements. Its expansive geometric roof, built using locally grown bamboo, collects and drains rainwater down the small canals that surround the building. From there, the rainwater flows towards the agricultural areas before ending up in natural reservoirs that prepare the property for the drought season.
The architects also experimented with the local craftsmen for the the earthen walls made from the local soil. This lent a natural terracotta color to the learning center. further enhance the sufficiency thinking and mindset for adapting locally made materials and available skills for modern use.
As for the project’s relationship with the country’s sustainability and sufficient economy ideologies, the architects gave a poignant statement. “The activity center reflects the belief that architecture is a living science that must transform and grow with the new development of technology, in response to evolving human needs and behaviors.”
Photography by Ketsiree Wongwan

















