This modern “Bahay na Bato” is a project from TJSO Architects that is estimated to be completed by the end of 2022 or the first quarter of 2023. Located in Rufino Street, Oriental Mindoro, the House is situated in one of the exclusive subdivisions in Pinamalayan. Pinamalayan formerly “Ipinamalay” which translates to “to Make Aware” is a first class municipality in Oriental Mindoro according to the 2020 census. Pinamalayan has many ancestral houses that are now converted into businesses. There are many white sand beaches around Pinamalayan as well.
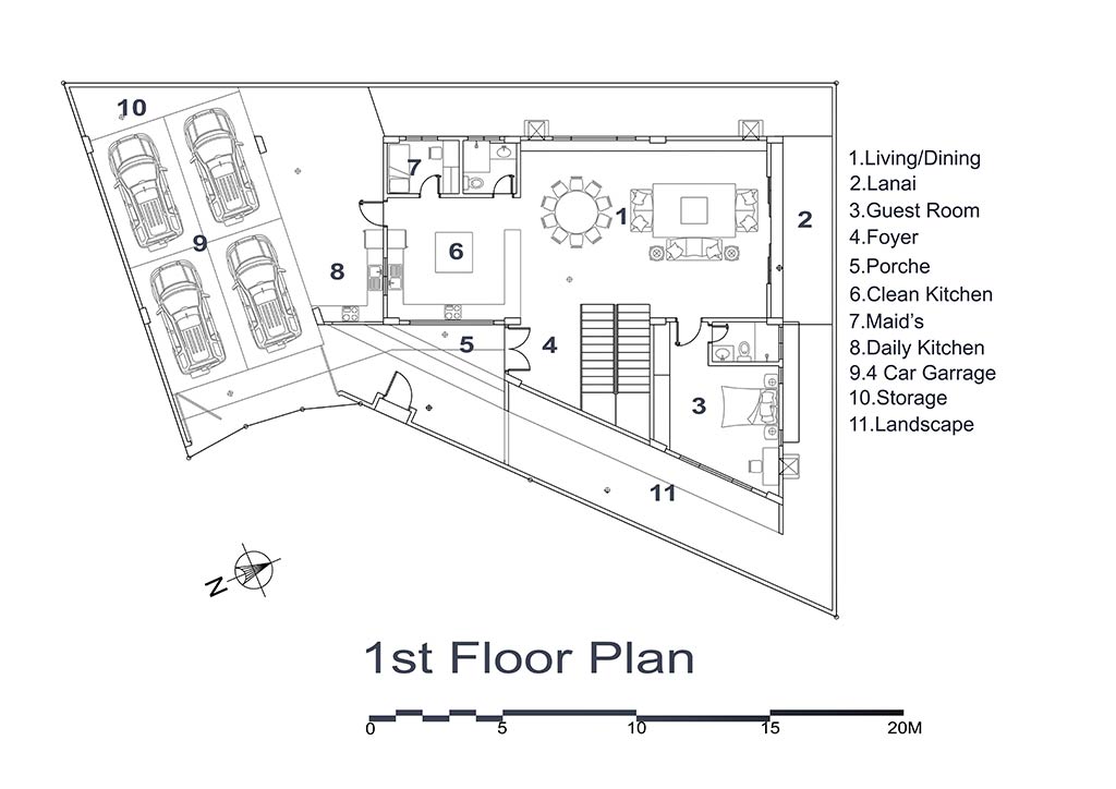
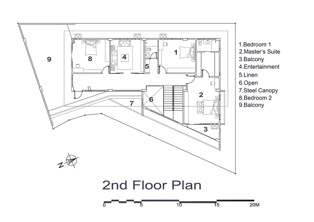
The House sits in a 400 sqm. irregular plot. The owner’s brief is pretty simple and direct. They wanted to have a modest 4 bedroom house, a four-car garage and an entertainment area. We were given freedom with regards to the planning and design of the house. First thing we did was to use the irregularity of the property to our advantage. The lot is very irregular and it is located in a cul-de-sac, but this creates an interesting form for us to play around. We made the house look sculptural and at the same time drawing influence from the many ancestral houses in the area, we decided to combine “Bahay na Bato” elements to our composition.
The result of which is a fusion of Modern and Traditional. Modern form combined with the Traditional elements. Pinamalayan is “Typhoon prone” so we decided to include vertical reinforced wooden slats to act both as “brise soleil” and also as a protective barrier that will act as wind and debris diffuser during heavy winds caused by strong typhoons. This design is very timely because of the recent typhoon Odette that hit Cebu and its neighboring provinces in the Visayas. With wind speeds that reach more than 200kmph, many houses sustained shattered windows caused by flying debris and strong wind. We made use of natural materials such as Araal stones as wall cladding. Canopies and Roof eaves were hyper extended to keep the building cool during summers but still allowing natural light to come in. Natural ventilation was achieved by cross ventilation planning and by adding clear story louvre slats that will give a “chimney effect”, funneling all the hot air out of the building.
We need to be “Sensitive and Practical Architects” when we are designing a structure. Sensitive: There are projects that need to stand out and there are projects that need to blend in. But there are also projects that need to be both. Such as this one. It stands out due to its sculptural form yet being Sensitive, it does not completely alienate the looker because elements familiar to the place and the viewer were added in the design like the araal stones, wooden slats and extended roof eaves and balconies. Practical: We need to create design elements that not only look good but also have a Practical use to it like the vertical reinforced slats that we added to act as brise soleil and at the same time as wind and debris barrier during strong typhoons.
You may also like: The Scrap House: Merging Sustainability and Functionality
This is also an opportunity for us to appreciate our roots. As Filipino architects, we need to be good contributors in preserving, if not revisiting our Architectural identities and cultural heritage. This is an interesting case study for us and we are thrilled to bring this new acquired knowledge and understanding with us for our future projects.
Photos provided by TJSO Architects












