CSO Architects Amara house offers panoramic view of Magellan Bay
Late in 2013, Charisse Osmeña completed her first residential project in Liloan since she returned from her stay with Singapore-based firm SCDA. Plans for the seaside residence began in 2011, preceding the establishment of her firm CSO Architects. With no staff or office yet, she drew everything on her own at home, balancing this with the new responsibilities of motherhood.
The 440-square-meter lot lies by a sloping road leading to a cul-de-sac. Located on the east of Cebu, the subdivision’s street layout hugs a projecting portion of the coastline, offering the lots a panoramic view of Magellan Bay to the south.


Osmeña recounts how the client, presented the tabula rasa site to her and was later made aware that two other architects were also vying for the project: “She honestly told me that she wanted the other two because of their experience…but I was the only one that was able to give her the plan that she wanted.”
READ MORE: The Pig and Palm: Neri&Hu’s temple for tapas in Cebu


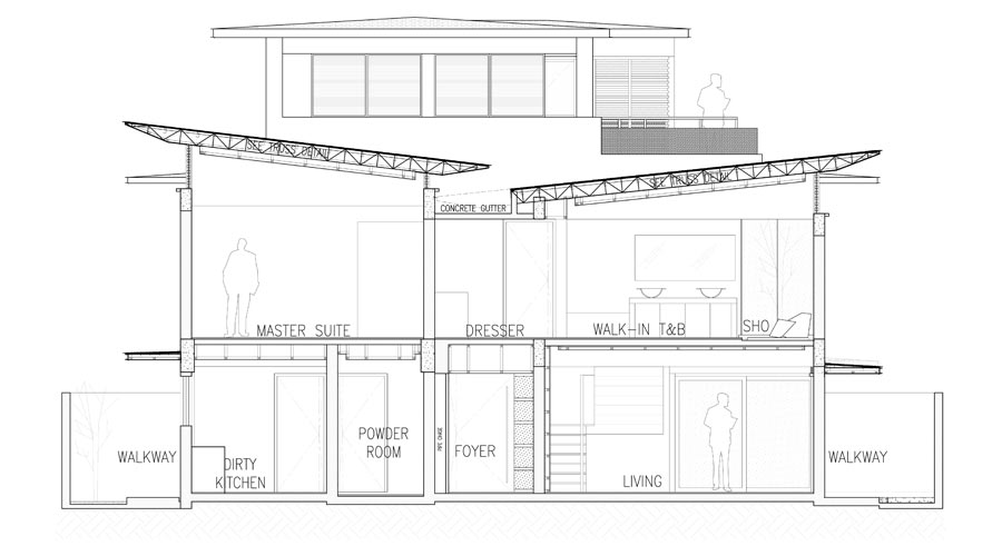
The client loved the open plan and outdoor spaces maximizing the sea view. With the coast facing the south, the wraparound patio and roof deck are oriented towards a horizon without the direct view and glare of the sun. The color palette revolves around neutral colors and dark wood, only straying in the bold red kitchen.
Operable doors and windows enclosing the open-planned common areas on the ground and second floors allow the house to benefit from the sea and land breezes, as well as provide cross-ventilation. Another gathering space is located on the roof deck, which has a small bar, a roofed lounge, and a balcony facing the sea. The lounge is surrounded by a series of shuttered louvers, which can be swung in either direction to catch the breeze wherever it is coming from.
READ MORE: God, Man, Nature: Amara Chapel by Buensalido+Architects

Amara, the name of the village, is derived from the Spanish word for the mooring rope used to anchor ships at port. And taking cue from the etymology of such name, many houses there are Spanish-esque and Mediterranean villas. The black and white composition stands out with its inward sloping gables, overhangs, and slim details. Louvered clerestory windows let natural light in during the day and highlight the butterfly-shaped roof even more when light from inside spills out in the evening. The house embodies a boldness that is not heavy-handed.

Osmeña retains the tropical modern materiality and nuances she was exposed to in her previous job, and adjusts it to specific requests Filipinos make. And Amara provided the ideal opportunity to anchor her first major project on the shores of the Philippines and discover what was to be the beginning of her own design approach and CSO Architects. ![]()


