MM01: A 20-Square Meter Cabin Divided into Four Spaces of Equal Sizes
Designing a house on a limited space can be challenging. It is crucial to maximize every square footage while meeting the occupant’s living requirements. With proper planning and a well-thought use of space, however, it is possible to create a home that can accommodate one’s needs and family members without feeling cramped inside.

Case in point is the “MM01” Cabin in Austria designed by Christian Tonko. The project is a 20-square meter small weekend house for two people. The owners usually use the space as a base for outdoor sports and other activities in nature.



The name of the project is based on Malcom McLean who is the inventor of the shipping container on which the modules are based in terms of the standard dimensions and frames. These containers can be transported by standard trucks on the road. The architect explains that the whole structure including the screw foundations can be removed entirely and the site can easily be restored to its original state.



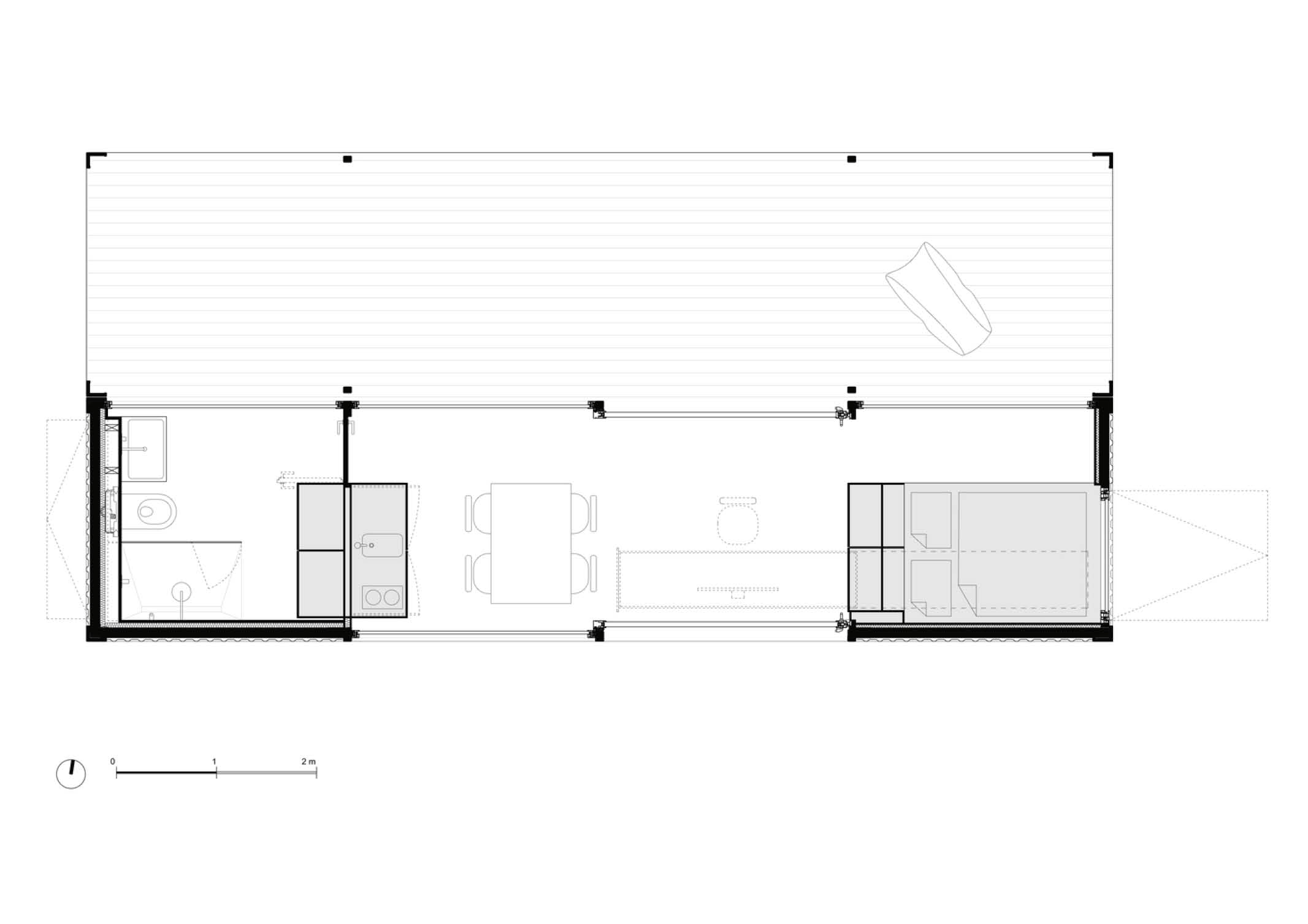
The architect had to come up with a practical design that would fit the limited space of the cabin while making the space comfortable to live in. He divided the compact space into four equally sized areas dedicated for the bedroom, living and workspace, kitchen, and bathroom. Despite dealing with spatial constraints, the cabin still managed to have a fully equipped bathroom and kitchen, including modern conveniences like a dishwasher and a washing machine.
It is worth noting how he makes the most of the space available. He incorporated space saving techniques to further maximize the use of the space. For instance, a desk, including a foldaway screen, can be pulled out from underneath the bed. The living module, meanwhile, is complemented by a terrace module of equal size facing a beautiful treeline to the north.
The orientation of the cabin allows the terrace to provide privacy and is being shaded on hot summer days. The forest, meanwhile, acts as natural air conditioning.
Photography: Christian Brandstätter












