Built Ecosystem: Tree House by ROOM + Design & Build
Recommended Video
According to ROOM + Design & Build, the recent years saw Vietnam experiencing a rapid rise of property prices and economic development, alongside higher demand for shop and apartment rentals. These factors led to the popularity and prevalence of mixed-use urban houses in the country’s major cities. For one of their recent Ho Chi Minh City projects, the architects decided to come up with design solutions that address the needs of both the residential and commercial needs of the property.
“This architectural typology requires highly effective design solutions in terms of business model and program, and also needs unique characteristics which are responsive to the context and fit with the occupants’ lifestyle.”
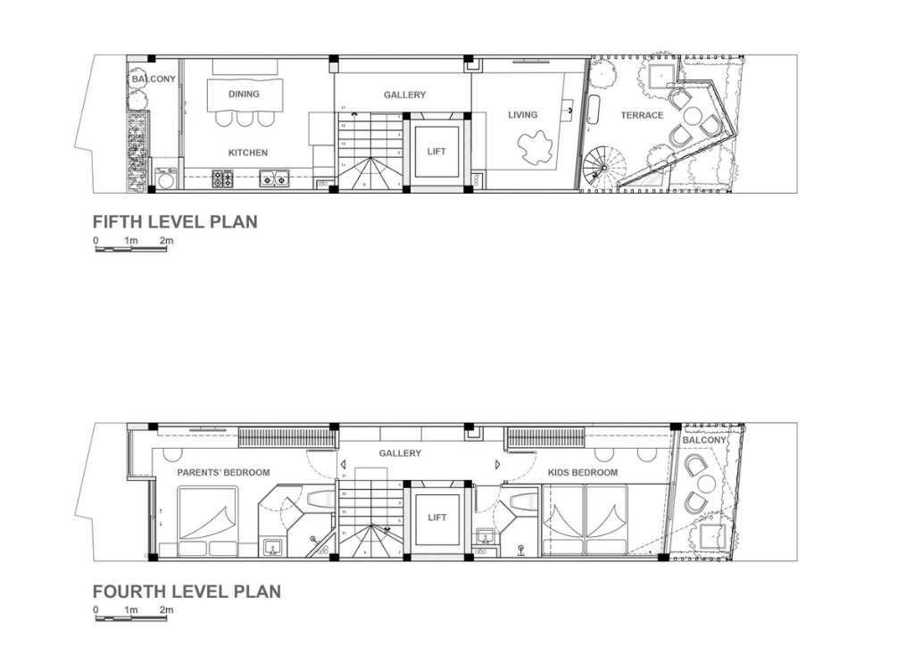
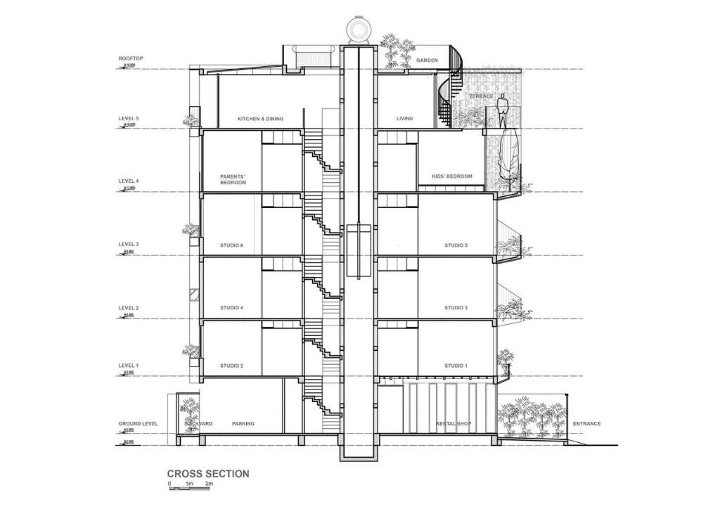
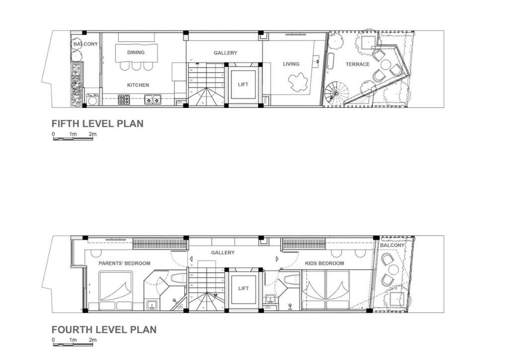
So, they came up with the Tree House, a 6-level townhouse that sits on an 80 sqm lot in the main street of the city. It reinvents the usual architectural typology of mixed-use urban residences, designed to accommodate a variety of uses. These include shared and service spaces, a small commercial space, and six fully-furnished rental studios in the three lower levels. The home owner’s residence is perched on the top two levels, with two bedrooms, balconies, and spacious terraces.
As its name indicates, the Tree House blends architecture with nature, as reflected in the floor plan. “A house is considered an organic ecosystem,” the architects noted. This idea is cleverly integrated in their design, from the building foundation to the balconies, terraces, and the facade’s design elements.
You may also like: Kabana Treehouse: At One With Nature
“The design concept is inspired by the formation of a growing tree. The tree root is similar to the building’s foundation with 25-meter deep piling, the lowest part of the trunk accommodates the shop and the entrance, the studios build up the tree trunk with leafy cantilevered balconies just like tree branches, the big tree canopy on top is imaginably formed by a double-high pergola and the owner’s home’s big terraces, this is also the focal point of the overall architectural form.”
The living spaces are placed at the front and the rear of the property, while the center serves as a circulation core and provides access to all floors via stairs and lift. At the ground level, the front has a 3.5-meter setback that serves as a courtyard. Upon entry, the hallway leads to the rear area, which provides parking spaces for bicycles and motorbikes next to a small backyard.
The facade features zig-zagging walls with sand-washed paint finish, intended to reflect and reduce the noise coming from the busy street. They also visually represent tree bark ridges. The two top floors are adorned with lush gardens and vine-covered pergola, which tone down direct sunlight. Finally, a spiral staircase leads to the rooftop garden which reveals a panorama view of the city. All of these elements and features allow all the areas of the property to co-exist harmoniously, like a mini eco-system housed by a tree.

Photography by Sonmeo Nguyen Art Studio

























