Micaela Benedicto’s Kodama House goes nude
Recommended Video
It doesn’t look like a house. With its raw concrete skin, the structure looks like an imposing modern fortress. The same could be said for the structure beside it, an L-shaped monolith with no windows. It’s like these two blocks of concrete rose up from the ground, becoming extensions of the cement road out front. These structures that comprise the Kodama House, designed by Micaela Benedicto, might turn some people off. Who would want to live inside these boxes that look like fortresses designed to keep people out? But despite the strong and clean lines, and the raw, “brutal” skin of both the façades and interiors, the house’s indoor spaces appear calming and welcoming, a far cry from the cold, impersonal environment its external appearance suggests. How is this possible?
Simply enough, the answer lies in the synergy between architect and client, as both gave way to each other’s talents during the design process to create a house that revels in its rawness and “nudity.” “A house doesn’t have to follow the mold of something that already exists,” says Benedicto. “It helps to listen to the client and customize it to their individual needs and patterns, and how I imagine they’ll want to experience the space.”
While the raw exterior profile of the Kodama House is in keeping with Benedicto’s fondness for béton brut (French for raw concrete), its interiors display a warmth, simplicity, and materiality reminiscent of Japanese aesthetic. This was achieved because the client was given the freedom to customize the spaces to fit his needs. The result is an “unfinished” house with the client’s imprint all over it, and the architect’s design statement still intact.
Despite the strong and clean lines, and the raw, “brutal” skin of both the facades and interiors, the house’s indoor spaces appear calming and welcoming.
Naked and clean
The project is composed of two buildings in a 600-square meter lot—the three-storey residential block that occupies 240 square meters, and the two-storey recording studio block occupying 215 square meters. The client, a Japanese expatriate and prominent recording engineer and artist, confesses that he is drawn to squares and corners. This explains the simple box form of the structures and the “grid” motif present in the entire house, mostly seen in rectangular lines made by hollow blocks, the wall of glass blocks by the stairwell, and the wall-mounted “diffusers” inside the studio.
The client wanted his studio separate from the house so he could do recording sessions without bothering his wife and son. This arrangement opened up a yard in the middle. This outdoor space, with its sand and gravel patch, is consistent with the house’s texture and appears to be an extension of the two concrete volumes. The space is informal and bare so that the client and his guests can use it however they wish: as a car park, a basketball court, or even a skateboarding ground.

Benedicto used reinforced concrete columns and beams, and concrete masonry units aligned in a rectangular grid to reduce formworks. The perimeter fence is made of concrete as well, and like the two volumes, was left unplastered. “We don’t always have to put plaster on concrete. Poured concrete has such a great smooth finish,” she says. As a result, the house’s overall texture feels naked but clean, thanks to the quality workmanship of the contractor, Ken Javier.
READ MORE: PONT Studio welds architecture and sculpture together
A sea of concrete
The raw finish continues into the interior walls and floors. Utilities are exposed, and paint is sparsely used. The interiors of the residential block are treated with unfinished wood and cement, consistent with the unfinished quality of the structures. “The plan was quite simple. The client needed an open plan for the living areas, and three bedrooms,” says Benedicto. “It really just stemmed from two 6×6-meter squares, one for the living room and one for the dining and kitchen area, which the client agreed to immediately.”

Minimal furnishings further emphasize the openness of the spaces—a single black sofa sits on the living area, a white box for an island counter occupies the middle of the kitchen. The rest of the space is a sea of concrete. Benedicto drew up the main design of the residential block, guided by the client’s requirement of implementing a Japanese version of feng shui, where the north orientation is the basis for the grid. Areas with water, such as the kitchen and bathrooms, had to be situated at the north corner of the house. The recording studio, however, was built as an empty shell, so the client could do the interior planning and specify the acoustic treatments himself. “He has very specific needs for these,” she says. “It’s unlike a conventional studio, and he’s built his own recording studios in the past.”

The client’s DIY forays aren’t limited to the recording studio. The wood details in the residential block were custom designed by him, and the nakedness of the material lends a Japanese sensibility to the interior spaces. The wood slat stair railing, the dining table and benches, and the second floor cabinetry are all sanded and unvarnished. Fitting in comfortably with the visual rawness of the concrete, these additions further show how receptive Benedicto’s architecture is to the unconventional preferences of its users.
They say nudists are uninhibited because they have already revealed their imperfections; therefore, their mind and soul are free. The same could be said for a house that doesn’t cover what many would hide. The unabashed display of utility pipes, rust, distressed wood and raw concrete implies honesty. Appreciation for this aesthetic has greatly grown over the years as seen in every commercial, restaurant or residential space with an “industrial” theme. The Kodama House, however, moves past superficial appreciation by demonstrating that béton brut can comfortably shelter life. ![]()
READ MORE: Grading Green: The case for BERDE over LEED

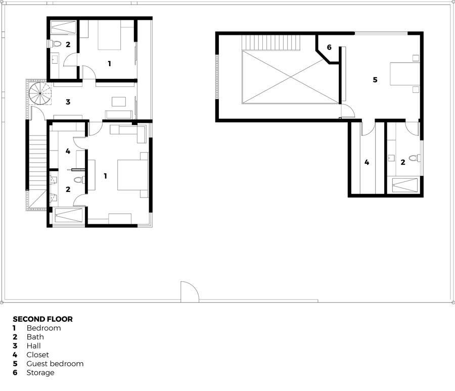
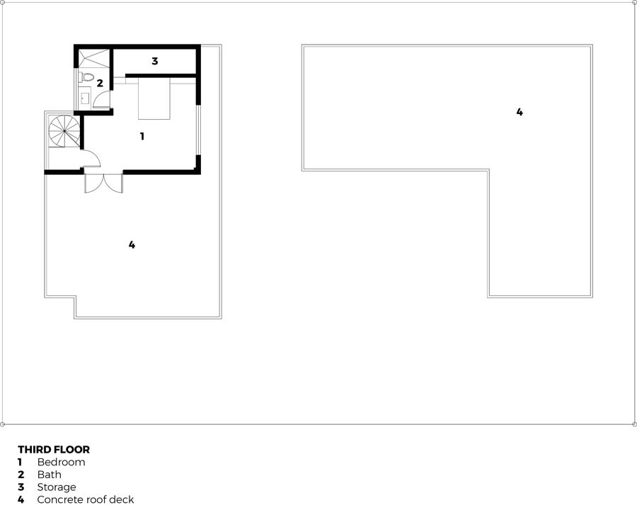
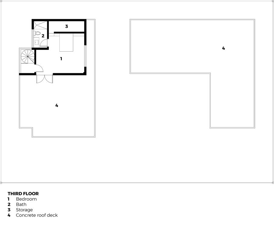
Floor plans



This story first appeared in BluPrint Volume 2, 2016. Edits were made for Bluprint online.
Photographed by Ed Simon and Grace Juliano