Advertisement
Advertisement
Commercial

These welcoming pavilions orchestrate encounters

November 13, 2018
|
By 
Judith Torres

Recommended Video

Tap to Unmute
Unmute
0:00
0:00 / 0:00
0:00
welcoming pavilions
View of the house from the long driveway. The deep veranda conceals most of the upper floor, effectively reducing the bulk of the house. The entrance to the house is at the very back.

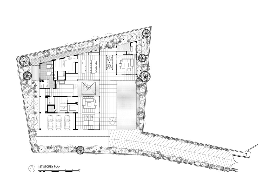
The Veranda house is on an odd-shaped lot—a quadrilateral with four sides of different lengths and one long arm that flares out at the end, like a watering can spout. The house is tucked behind its neighbor and accessed from the street by a 40-meter-long driveway lined with flowering shrubs. The driveway goes past a lap pool, a young eucalyptus tree, and the wide, shady verandas the house is named for.

The entrance to the house is at the very back of the lot, making the most of the processional experience from the city garden and pool, and into the welcoming pavilions of this young family of five. From the discreet carport (no views of parked cars from any part of the home’s interiors), one walks down a sheltered passageway lined with river stones to a 3.53-meter-tall door. The processional act does not end there. The door opens to a vestibule, from which one can see all the key spaces of the ground floor, each in their pavilion, connected by canopies 4.8 meters deep and underlaid by soffits and ceilings of rich, warm wood.

“We wanted to explore ways of continuing the language that has been established in Southeast Asia, in tropical architecture, but in a contemporary way,” says Alan Tay, one of the principal architects of Formwerkz, who designed the house. The firm’s design philosophy of “recovering the relationships of man with fellowman, and man with nature,” was a main driver of the design. Apart from being a climatic response to Singapore’s hot weather, the Veranda House, Tay says, was a spatial response. They were concerned with how to organize spaces not just to stay cool in the heat, but also to “enjoy and interact with the tropics in the way that we used to.”

Advertisement
welcoming pavilions
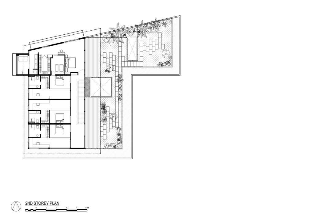
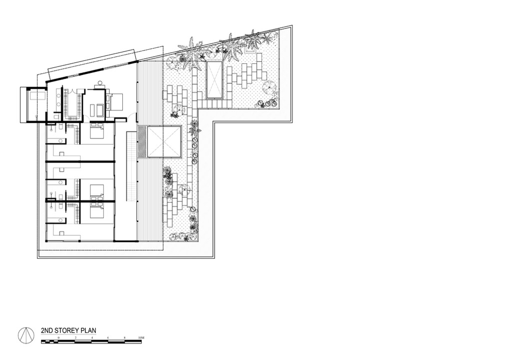
The deep canopy shading the generous veranda on the ground floor is a roof garden for the enjoyment of family members on the upstairs bedroom floor. Because of the site’s unusual configuration and setback from the street, it is bound on four sides by neighboring houses. The generous roof eaves and the landscaping on the second-floor garden safeguard the privacy of the home. The robust structural support of the elevated garden is designed to carry a future extension on the second floor when the need arises.

He explains further: “We were inspired by the old colonial houses where rooms and living spaces are all organized around these huge verandas, and where the corridors are living spaces.”

The dark glassy surface of the koi pond just outside the vestibule is a contemplative counterpoint to the glinting turquoise water of the pool further out. The two bodies of water seem to embody the yin and yang of the home’s life—bright and dark, public and private, extroverted and introverted, active and meditative, spontaneous and planned.

The house plan, like many of their projects, Tay says, is designed to orchestrate encounters between family members. He decries the growing segregation and isolation of people in their homes, a situation exacerbated by technology—cellphones and tablets. He also makes an interesting observation about a trend among Singapore homeowners today to go for designs that are as broadly appealing as possible, even generic, to appeal to future buyers.

Advertisement
veranda house
View of the home from the main entrance, which is literally a back door, not a front door. From this vestibule, the processional movement from the gate continues left to the dining room, right to the family room, or upstairs to the bedrooms. The staircase is located at the center of the house, against the backdrop of the water courtyard and the swimming pool beyond.

Another result of building for maximum resale value is the cutting up of the plan into as many distinct spaces as possible—foyer, living room, family room, TV room, study room, meditation room, and so on—because prices go up the more rooms a house listing has. A home with numerous enclosed spaces no doubt contributes to family members being oblivious to each other.

No such problem at the Veranda House. Sliding glass doors enable family members to be aware of each other’s presence. Since they open the glass doors whenever they use the dining room, living room, or family room, communication is easy. Upstairs, casual encounters are unavoidable. The three children’s rooms are arranged along a broad corridor, which terminates in mom and dad’s bedroom. Sliding doors allow the children’s bedroom walls facing the hallway to open two-thirds of the way through. The motivation to keep the doors open is the fresh breeze and the nice view of the landscaped green roof. Pavers on the grass lay a meandering path through the garden, whose small trees and shrubs will grow lusher over time. Two openings in the roof deck let two young eucalyptus trees planted on the ground floor to grow through. Unless pruned, they will soar five to six storeys high. A canopied timber deck allows one to sit outside, just as one would sit out on the veranda downstairs facing the pool. It doesn’t get hot here as the veranda below and the green roof above face east.

veranda house
When the sliding panels of the three children’s bedrooms are open, the cross ventilation in this space and the bedrooms is fantastic. At the end of the hall is the parents’ bedroom.

veranda house

veranda house

veranda house

veranda house
The Veranda House at dusk, as seen from the driveway.

What is remarkable about the design of the Veranda House is its ductility, as the architects stretched the processional act as much as they could, eschewing neutral paths of the shortest distance, while keeping sightlines unobstructed to create quiet places of contemplation and observation. Extending the processional act makes coming home and moving through its different spaces a calming ritual, peeling away the cares and constrictions of the world outside. 

This article first appeared in BluPrint Vol 1 2018. Edits were made for BluPrint online.

Advertisement

Photographed by Fabian Ong

READ MORE: Buensalido’s polygon house is the result of out-of-the-box thinking

SaveSave

Download this month's BLUPRINT magazine digital copy from:
Subscribe via [email protected]

To provide a customized ad experience, we need to know if you are of legal age in your region.

By making a selection, you agree to our Terms & Conditions.