Advertisement
Advertisement
Concept

IN PHOTOS: The 306 Cuenca Indoor/Outdoor House

October 9, 2019
|
By 
Habulan and Ngo Design Studio (HANDS) Co.

Recommended Video

Tap to Unmute
Unmute
0:00
0:00 / 0:00
0:00

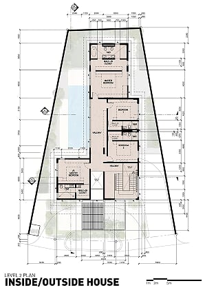
Creating spaces that seamlessly permeate through each other, the two-story Inside/Outside House is a manifestation of visual continuity between exterior and interior spaces. Elements were designed to respond to the climatic conditions of the tropical environment.

The design was dictated by the specific conditions of the site while blurring the boundaries of indoor and outdoor spaces.

 

306 Cuenca consists of interlocking volumes that form the overall massing. The house is enveloped with glazing, welcoming diffused daylight.

 

The sloping plaza creates the entryway for the
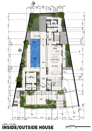
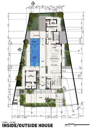
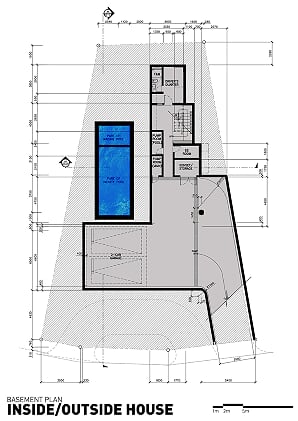
basement consisting of a 2 car garage and a maid’s room, with a service stairway that leads to the dirty kitchen on the first floor.

 

The first level of the house welcomes the users with a canopy that largely spans all the way to the plaza. The kitchen, living room, and dining
room all have an open space.

 

A central void was introduced along the hallway to create a passive cooling effect for the whole house, minimizing the use of mechanical cooling.

 

Landscape features were introduced to further delineate the property.

 

This vertical section shows how ventilation passes through the house all the way to the Lanai, where the pool creates an evaporative cooling effect for the house.

 

This section shows how the central void creates passive cooling for the house, releasing hot or warm air inside the house.

 

While the landscape is transitioning to envelop the space, the natural setting becomes a programmatic delineation.

Located in the south of the metro, 306 Cuenca aspires to act as a contemporary Filipino refuge of space, comfort, and ethereality.

Advertisement

READ MORE: IN PHOTOS: Rong Hua Bak Kut Teh’s Design Concept

Images courtesy of Habulan and Ngo Design Studio

Download this month's BLUPRINT magazine digital copy from:
Subscribe via [email protected]

To provide a customized ad experience, we need to know if you are of legal age in your region.

By making a selection, you agree to our Terms & Conditions.