In the Works: The Camber House in Batangas by Gaga Design House
Recommended Video
Filipinos in general love celebrating holidays out of town. Families fondly anticipate extended periods of rest whether it be Christmas, New Year, or Holy Week. Batangas, being in close proximity to Metro Manila, would be one of those popular holiday destinations. With just a two-to-three-hour drive, one can already enjoy the pristine beaches located in municipalities such as San Juan, Calatagan, Lobo, Mabini, Tingloy, and Nasugbu. Close to these beaches are stunning vacation homes where guests can rest and relax, veering away from the busy city life. One of the upcoming new vacation homes in Nasugbu, Batangas is the Camber House. The house will be built on a 400 square meter lot in Peninsula de Punta Fuego. The proposed structure will have a total gross floor area of up to 780 square meters. Architect duo, Miguel and Anna Garcia of Gaga Design House say the project is currently in the bidding phase and construction is expected to be finished by 2023.
With the intention of bringing the outdoor experience indoors, we designed an open plan, unobstructed by walls and columns, and bounded by oversized glass. This allowed both front and rear yards to be visible from either end.
GAGA DESIGN HOUSE


Camber House is all about location. Situated on a promontory, the main intentions were to design a home that can withstand harsh weather conditions brought by its closeness to seawater while being able to maximize the views around. The scenic view of the location is the reason why it’s a popular holiday destination. The concerning weather conditions also had given materiality an even greater role in the overall house design.
The architects considered and strengthened sustainable design without having to compromise the structures’ aesthetic value. From designing a curved wheelchair ramp at the entrance for accessibility to the use of aluminum composite panels as gutter cladding, and to having fluted walls to deter future drip marks. A portion of these fluted walls on the second floor can be fully opened whenever there’s a need for optimum morning sun and it can also be fully closed, acting as a second layer blocking the harsh afternoon sun. Also, the V-Shaped Columns at the front and rear entrances give the aesthetics a bit of a twist. Evaluated and acted beforehand were the necessary preventive maintenance projections.


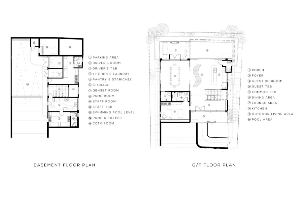
The use of extended cantilevers for shade paved the way for the incorporation of large glass panels, permitting residents and guests to appreciate the views and natural elements surrounding the property. As these large glass panels are also operable, residents and guests can easily open up and extend spaces to their delight. The interior also boasts a large open layout for the users of the vacation home to veer away from the feeling of restricted spaces of city living. Camber House has a total of 4 levels. The basement houses all the service areas, and the ground floor contains all the communal spaces such as the living, dining, kitchen, and guestroom. On the second floor would be all the bedrooms while the roof deck serves as the open lounge and viewing deck of the house.
“Camber House was designed not just to see the sites around it but to be a site to see on its own. Minimalism in design is not just about using less but being more intentional in the use of materials to gain more purpose,” says Miguel and Anna.
Gaga Design House is also formally known as Garcia and Garcia Architectural Design Co. Its founder and principal architects, Miguel Silva Garcia, and Anna Garcia Garcia focus on expressionist architecture and on bringing out the emotional value of the structure for their clients. Not only is “Gaga” an abbreviation of the principal’s names, but also the firm’s philosophy as the literal definition of “Gaga” means being very enthusiastic and excited about something.
Article Credits: Drawings and Images courtesy of Gaga Design House©


