Privacy Walls And Light Effects Lift The House Between The Wall
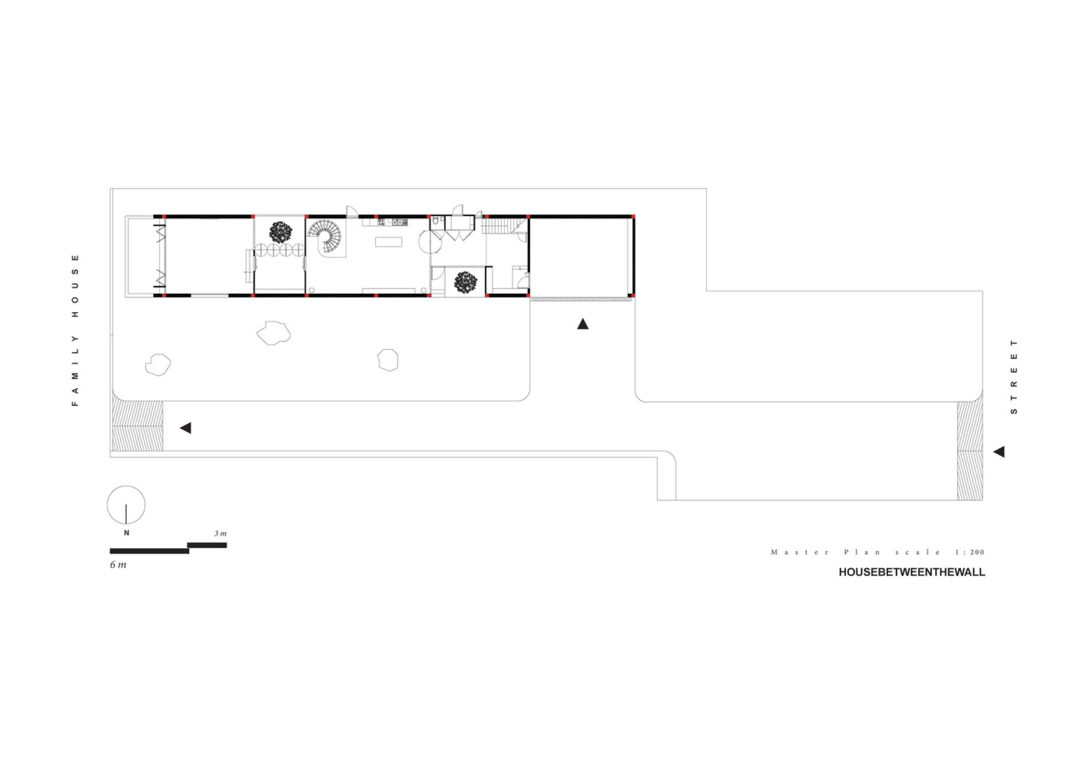
The House Between the Wall was designed by Anatomy Architecture + Atelier using a concept inspired by the constraints of the site context, which provided a long, rectangular space along the street of Krung Thep Maha Nakhon, Thailand. The facade, which is strong and box-like, is intentional to ensure the residents’ privacy inside the 400 square-meter property. The strategy used privacy walls and lighting effects to give the interior spaces a scenic and laid-back atmosphere.



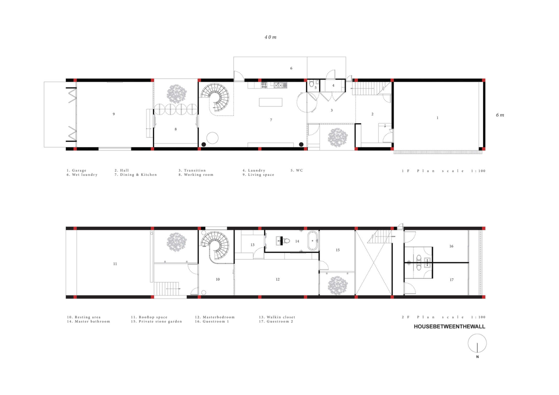
The open layout approach allows ventilation to flow through all the spaces in the interior. Even the orientation of the floor connects all the spaces without requiring any steps. Natural lighting, in addition to ventilation, aids in the purification of air and humidity, particularly in bathroom areas. To embrace the moment of existence and connect with nature, the exterior scene is surrounded by greenery in every corner of the house.
The property has 40-meter long walls that define the whole structure. The design team allocated 260 square meters for the interiors and 140 square meters for the exterior path and landscaping. The interior space is divided into two wings: a guest area and the owner’s private quarters. The home’s extensive length provides the residents with a social circulation distance. To incorporate nature into the interior, a big tree in the middle of each wing is visible from every angle of every floor.
All the doors and windows are dedicated to ventilation, lighting, and visuals. The team strived for the interior spaces to communicate minimalism with elements that invite organic light to warm up the white painted walls. The interior has a welcoming atmosphere with an all-white space, contrasting the feeling of too much activity outside the long walls. Glass blocks were used to allow filtered natural light to enter the interior, creating a play of light throughout the day.
Moreover, a plywood pivot door was installed to divide the open space as needed. The checkered kitchen, with plywood cabinets and quirky objects, as well as the dining area, contribute to the home’s playful element. Based on the stark simplicity of white gallery space, which supports the appeal of comfortable living, the interior spaces create a balance between seclusion and relaxation.
Photos are from VARP Photography.





















