The Wing in Bali Fuses Traditional And Modern Roof Design
Recommended Video
In Bali, Indonesia, architect Alexis Dornier builds a property highlighting a skillfully crafted roof design that effortlessly transforms from an A-frame to a box. The architect intended to incorporate a contemporary element into the Bali-style structure. His goal was to promote experimental architecture that combines various concepts into a unique and unusual form. The primary feature of the roof creates an imperceptible transition between the traditional and modern characteristics of an A-frame and a box.







Indonesia’s tropical location was beneficial as there was abundant organic light to be utilized. The inclusion of large overhangs for shade and balconies for indoor-outdoor spaces is a typical feature of Bali’s A-framed roof designs. The Wing’s roof form pays homage to Bali’s tradition by including this component, while the rectangular block adds a contemporary touch. To make use of the generous sunlight, solar panels are positioned above the flat portion of the box-shaped roof. Wooden shingles, a common local option for natural building materials, are used to cover the roof. The shingles continue as cladding on the rectangular block, sealing the two volumes together.
“The material change from the first to second floor ‘advocates’ for the building’s single-storey reading. The scale is manipulated carefully for the mass to not stick out, evoking inclusivity.”
Alexis Dornier






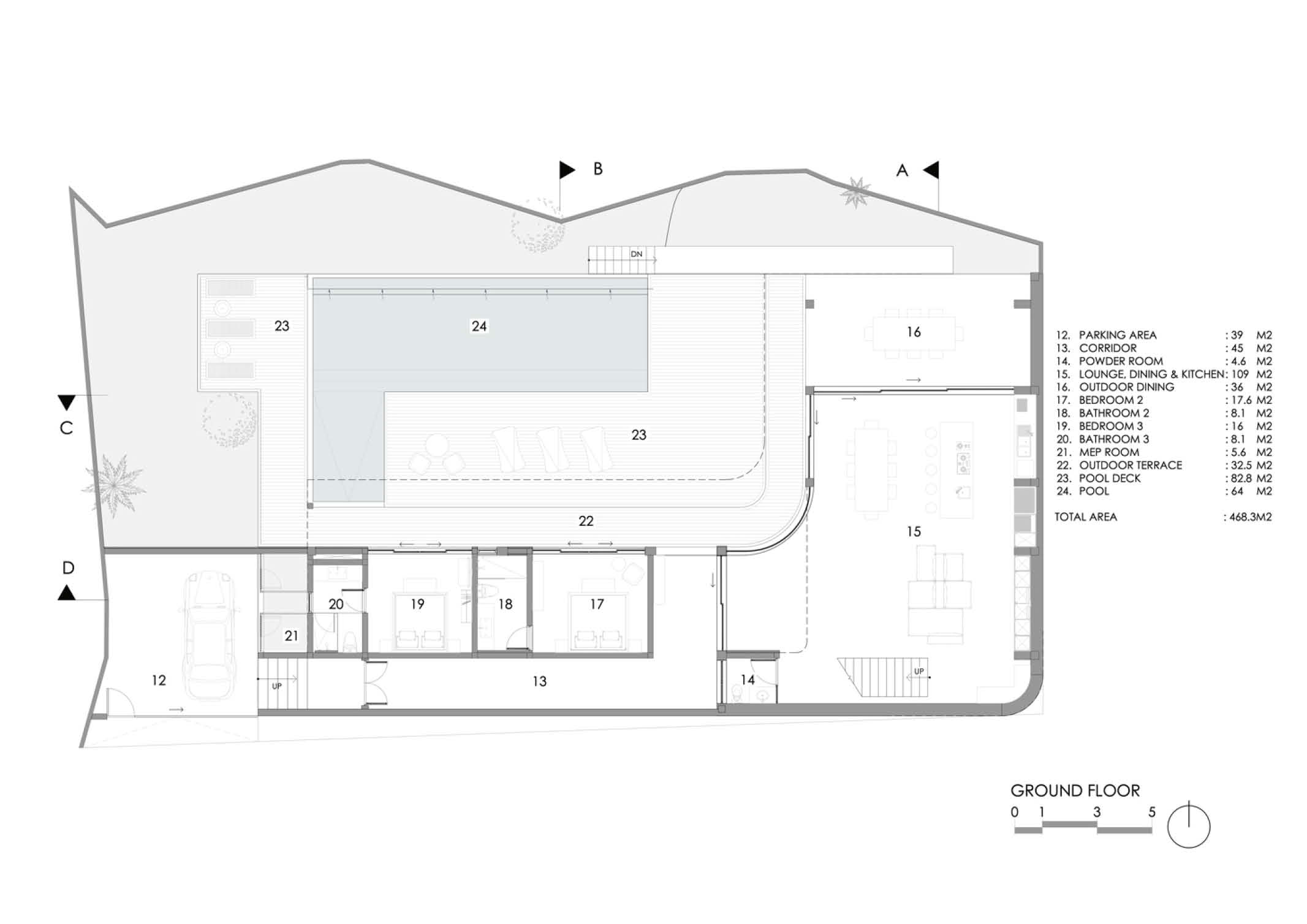
The L-shaped floor plan of the 766-square-meter property connects the pool and deck area. It forms part of the courtyard while providing access to the adjacent rice fields. Under the A-shaped roof, the living area’s double-height ceiling features an intriguing fluted design. The wood strips installed on the ceiling give the entire property a rustic and peaceful feel. Adjacent to the living area is the kitchen and dining space, overlooking the deck and pool through massive glazing and sliding doors. Generous overhangs protect the interior spaces against Bali’s heavy rainfall and intense sunlight.










In addition, the architect designed the home with a semi-basement containing a bedroom beneath the A-framed roof zone. On the rectangular block, two bedrooms are located on the ground floor and another three on the second level, all of which overlook the pool and the landscaped deck. All the spaces are contained within an L-shaped mass with north-facing apertures. This design permits views of the verdant surroundings from every room, while preventing harsh east and west sun glare.
Photos are from KIE.







