Advertisement
Advertisement
Concept

Sher Maker’s Wood and Mountain Cabin presents authenticity and symbolism through Shou-Sugi Ban

September 13, 2021
|
By 
Shan Arcega

Chiang Mai, Thailand was the ancient capital of Thailand’s ancient Lanna Kingdom and is known for misty mountains and colorful hill tribes. It is a playground and rest area for wandering travelers. It is in this city where the old and new mingle where Thai architecture and design studio Sher Maker erected the wood and mountain cabin. This small cabin peacefully hidden in the middle of nowhere is highly in tune with its surroundings and allows visitors a respite from their adventures while still giving them visual access to Chiang Mai’s serene forests. 

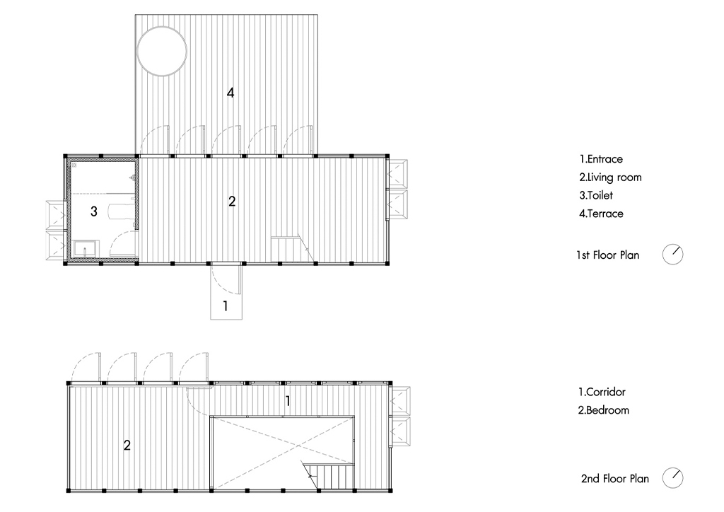
The Wood and Mountain cabin’s design is as straightforward as the wooden structures and wall systems found in northern Thailand. Its exterior is made with neat cladding made of locally sourced wood and brings privacy from all sides except one which has an extension of the wall to ceiling windows to provide views of the mountains. 

During the cabin’s conceptualization, the studio first experimented with wall mock-ups to collect samples and information on the material used–pre-existing, charred wooden planks. The charring process is heavily influenced by the Japanese Shou-sugi ban technique and lets the design blend better with its surroundings while making the cabin more resistant to weather conditions. Though it carries a simple design, its simplicity and imperfections carry strong symbolism that boils down to how authentic the structure is. 

Advertisement

According to Sher Maker’s talented craftsmen, using wood burners on the structure was not just about aesthetics. It was also about authenticity presented through architecture done completed by human hands. 

Photos courtesy of Rungkit Charoenwat

author avatar
Shan Arcega
Download this month's BLUPRINT magazine digital copy from:
Subscribe via [email protected]

To provide a customized ad experience, we need to know if you are of legal age in your region.

By making a selection, you agree to our Terms & Conditions.