Zubu Design Associates turns a Cebu warehouse into a home
Recommended Video
Progressivism is a mantra increasingly being echoed within young architectural circles in Cebu City, particularly amongst those educated at the University of San Carlos (USC). Its gurus are Artemio Alcoseba, longtime chair of Architecture at the USC, oftentimes called the “Father of Modern Cebuano Architecture,” and historian Fr. Winand Klassen, who wrote the first textbook on Philippine architecture in 1981. Among its younger adherents is Buck Richnold Sia, an apprentice of Alex Medalla before striking off on his own in 2005, and opening his own firm, Zubu Design Associates, in 2010.
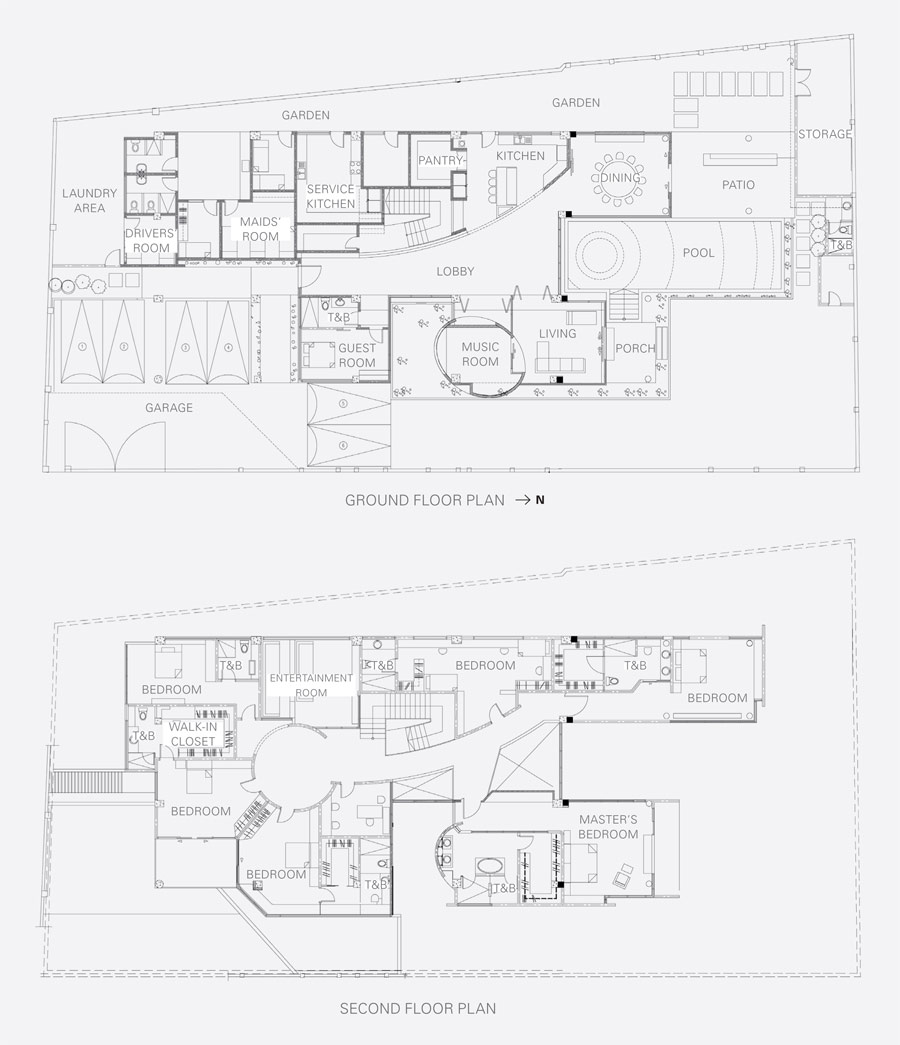
In 2011, Sia redesigned an 800-square meter warehouse in the uptown district of Guadalupe into a modern contemporary version of a traditional Chinese “compound house,” for an extended Chinese-Filipino family. This kind of house is often called a courtyard house, due to it being built around a central, open courtyard. However, instead of a courtyard, Sia placed a lobby-like entrance hallway within the structure, which serves as a central distribution space. Users are led from the main southern door to the outdoor lap pool at center-north; the kitchen, dining room and patio to the northwestern side; and the living and music room to the northeastern side.

The house’s distinguishing features are its whitewashed concrete cubes interspersed with glass curtain walls, and floor-to-ceiling glass windows
that follow the gabled roof established by the older structure. The generous gable height allowed Sia to insert generous passive ceiling ventilation in the form of vents, to mitigate Cebu’s notoriously humid weather. A large sliding gate affords entrance to the carport and garage, partially screened by triangular sailed sunscreens.
The main door from the garage leads into the “lobby.” A long, curving wall to the left separates the service areas from this main entrance hall, and provides the first curvilinear motif that gently breaks the rectilinear pattern of the plan. Through the curvilinear motif, the complementary motifs of gai tian (an ancient Chinese cosmographical concept revolving around the idea of the earth as a square, and the cosmos as a circle surrounding the square) are introduced into Modernist design as well. The staircase leading up to the second floor anchors one side of the “lobby,” while a guest room and an enclosed altar holding traditional Chinese household gods anchors the other side.
It is the curvilinear wall that the main staircase also follows in its first flight, returning to a rectilinear plan on its second and third flights. At the second storey landing, the same curve is repeated as a cantilevered bridge that spans across the hallway, connecting the northern half of the living section (containing the master bedroom and two “senior sibling” bedrooms) with the southern half (containing six “junior sibling” bedrooms). Incidentally, it is this division of the house into “north” and “south” segments that spurred Sia to call it the “Wing” House.
READ MORE: Zubu explores the distortion of masses in this QC home


The curved cantilever is anchored to the structure via a circular sala that forms a “head” in the southern half, and provides the fulcrum around which spatial distribution is organized conceptually in the second storey. The circular sala has six doorways, all leading to the six “junior sibling” bedrooms. In terms of motifs, this circular space is repeated at the ground floor music room, which is an oval-shaped space tucked behind the altar room, and just to one side of the living room. The meandering curve of a ceiling cornice follows the curved cantilever bridge from the circular sala into the conceptual “head” of the house: the master bedroom.
To prevent thermal buildup in the lobby, the windows face north and northeast, in the direction of the gentle morning rather than the harsh afternoon sun. The site’s oblique angle (with a roughly southwest-to-northeast axis) helps him in this regard. A generous ceiling height for both levels, again courtesy of the old warehouse, affords Sia the luxury of ventilating heat upwards and away from the living and bedroom spaces. A large roof overhang also prevents excessive sunlight from getting into the curtain walls, especially by mid-morning.
Pocket gardens, a part of Chinese tradition starting from the Sung Dynasty onward, are also one of the strong points of the house. Three such gardens, oriented south, northwest and northeast respectively, soften the architectural lines and bring nature back into the design equation.


The northeastern pocket garden, planted with bamboos that are seen from the ground floor guest room, altar room and music room, forms a small court garden that allows nature to “break into” the grid defined by the house plan. It “bites off” a chunk roughly five by four meters that “intrudes” into the structure, while giving nearby room users some visual rest and meditative calm from their respective spaces. Complementary to this “bite” is the north courtyard, defined by the lap pool and patio seen from the hallway, living room, dining room and kitchen, affirming the concept of the outdoors as a complementary space to the indoors. This feeling of interchangeability and connectedness with the outdoors is supplemented by the veranda on the second storey bedrooms, which face the southeast and north.
This being a house of a successful Cebu-based family, the furnishings are both topnotch and local. Sofas and chairs are primarily by Kenneth Cobonpue, which are supplemented with accents done by Sia himself, such as his trademark stainless steel cubistic tables with beveled edges—which, to a Star Trek fan like myself, compares favorably to the shape of a Klingon command console.
READ MORE: Postmodern revival in this renovated DTI regional office

The 20th Century Modernist avantgarde nature of Cebu’s Progressivist movement is apparent from Sia’s massing of design forms, from architecture to furniture, based on a conversation between cubistic and curvilinear. This translation of the design ethos of Le Corbusier and Oscar Niemeyer into local Filipino built environment should be tempered, however, by the realization that culture is still a central component to situating its narrative.
In Buck Sia’s “Wing” House, the Chinese tradition of housing extended families is well served by this smooth flow of spaces and comfortable appropriation of Modernist design that blurs stylistic distinctions, for a more earnest appeal for pragmatism and incremental transformation in tropical living. ![]()

This article first appeared in BluPrint Volume 3 2013. Edits were made for Bluprint online.
Photographed by Ed Simon