A Remarkable Harmony of the Old and New, The Henry Dumaguete
Recommended Video
Gearing towards the first quarter of the year, this month of March brings a different kind of hope. As movement restrictions ease and the summer heats up, everyone’s on the lookout for that perfect getaway. With the country being an archipelago, there are so many places to relax and cool off. One of which is Dumaguete City in the province of Negros Oriental. Aside from its pristine beaches, the place is also rich in architectural heritage influenced by the Spanish and American eras in the country. This is what The Henry Dumaguete is all about, a boutique resort that remarkably showcases the architectural harmony of the old and new.
The Project Background

Nestled within a sprawling 2-hectare property is The Henry Dumaguete, the first resort for The Henry Hotels and Resorts. According to Ar. Tim Wong of POLYGON: Human-Centered Space Design, the property used to be the South Sea Resort, and its management formerly ran the resort, making it a landmark in Dumaguete for the last four decades. The architects, together with the entire construction team, revived and reimagined the whole property as Negros Oriental’s Best resort while keeping the remnants of its past beauty.
The Design Story
Architect Tim tells us there were three things in the overall design brief of the project. The Henry team asked them to, first, revitalize the overall design. Second, to be keeping as much of the original structures and trees. And third, to prepare the property in meeting a new generation of travelers. “Our team at POLYGON worked closely with Eric Paras of A-11, and The Henry team, to ensure seamless integration of all areas with the company’s emphasis on place, people, and the Philippines. To meet these requirements meant the branding should incorporate what will the guest’s experiences be,” adds Wong. Throughout the process, done were several design solutions. These include having all areas for operations and guests strategically planned and preserving the sense of place through its earlier architecture. In addition, showcasing also both the culture of Dumaguete and Filipino artistry through the collections within the property.
It’s quite rare for us to have clients put a value on old structures. We took the challenge of bridging the old and new, since our office believes in the evolutionary nature of architecture, we saw it as an opportunity to explore the possibilities. How can we improve what came before while adding our own interpretation of these spaces and modernizing its functions?
POLYGON: HUMAN-CENTERED SPACE DESIGN



Since it’s a redevelopment project, the structures themselves already exude a character. The project re-used roughly 70-80% of the elements, which includes most of the present materials and structure. For the architects, the work is to modernize the materials and provide up-to-date functions. The designs display a great collaboration with Eric Paras of A-11, as his team also designed The Henry Hotel in Pasay City.
The Challenge
Of course, all projects whether it’s small ones or complex ones, all experience their own challenges. For this project, it’s mainly distance. As POLYGON’s office is based in Manila, the architects had to take another level of hard work, remeasuring, reexamining, and coordinating with the local engineers. Another huge roadblock is the reality of the pandemic. The consolation was the continuous progress. They were regular site visits and everyone in the team knew each other well before everything went to a sudden stop. “The Henry team and the project management kept everyone connected through regular online meetings. It was an unforgettable experience for everyone involved. We can’t help but be grateful to be part of this project,” shares Wong.
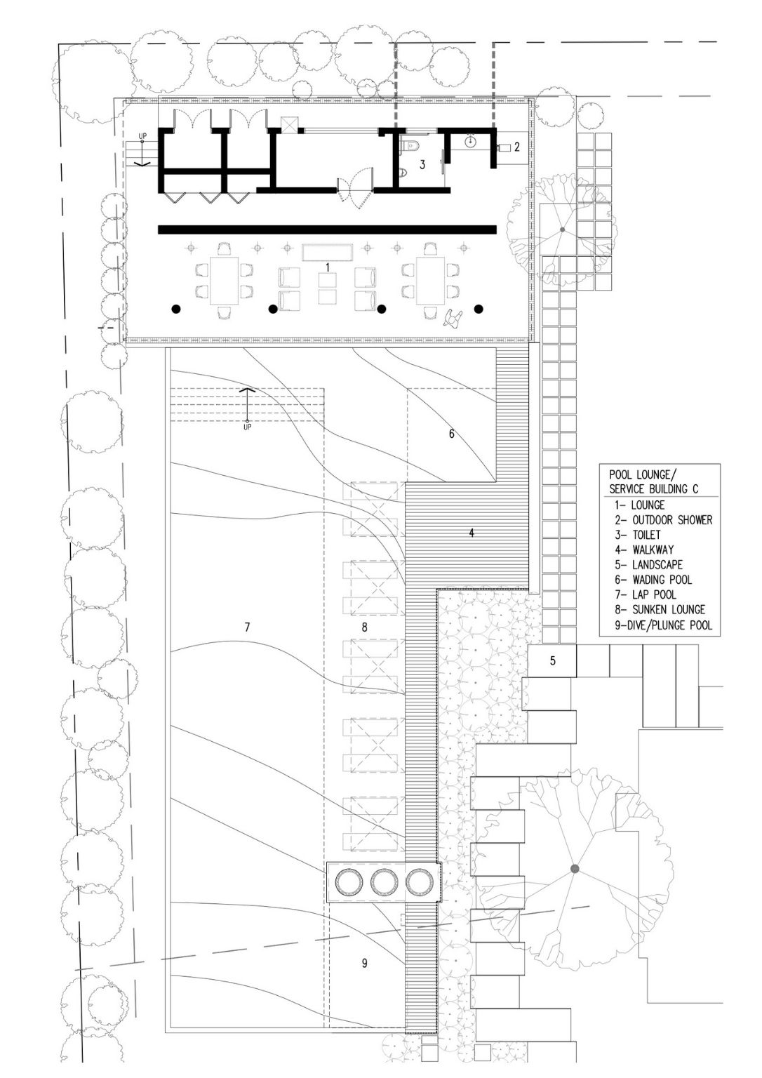
The Henry Dumaguete
Opened in January 2021, The Henry Dumaguete is now one of the city’s premier destinations. It’s a boutique resort overlooking the Southern Tañon seascape. Spread across its 8 villas are the 32 guest bedrooms, together with communal spaces featuring heritage artworks, sourced from different parts of the Philippines. Its location is accessible to many of the town’s interesting sites like the Boardwalk and Siliman University. Lastly, in the words of Ar. Tim, “It’s definitely something guests can look forward to – seeing the architecture, interiors, food, and people all in working in harmony to create an immersive experience.”
Article Credits: Drawings and perspectives by POLYGON: Human-Centered Space Design©; Images by The Henry Dumaguete©














