Fitzroy Bridge House: A Victorian-era terrace reenvisioned by using modern concepts.
Recommended Video
The authentic charms of Victorian-era terraces in architecture and interior design are undeniable. History defines it as the bread and butter of English urban housing and an obvious choice to many families back in the 1850s. There’s often more than meets the eye with its high ceilings and tardis-like proportions, the reason why designers to date are still fascinated to use this kind of design. The impressive Fitzroy Bridge House in Melbourne is another example of how these Victorian-era terraces are reimagined using a modern twist.
The Fitzroy Bridge house was initially built from 1880 to 1890 in Fitzroy, one of the earliest suburbs in Melbourne Australia mainly known for its rich tapestry of victorian-era residential and industrial buildings. The house is partly included in the heritage overlay of the South Fitzroy precinct but not fully listed as a heritage site, making it possible for a complete design and build makeover project. While the original state of the Fitzroy Bridge House is typified with common characteristics and complaints – a narrow area overshadowed and overlooked, the owners want to retain and celebrate the site’s history while updating the house design and function to suit their contemporary living.
Matt Gibson Architecture was engaged to design this challenging house. They said, “we didn’t want the extension to sit in total contrast to the original home. We wanted the movement between new and old spaces to be smooth and harmonious.” The “mews-like outbuildings” were also used as inspirations for the project. Mews-like outbuildings, by definition, are subsidiary dwellings commonly built during the Victorian era behind a principal residence backed directly onto laneways.
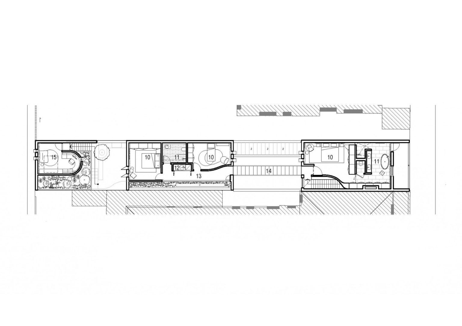
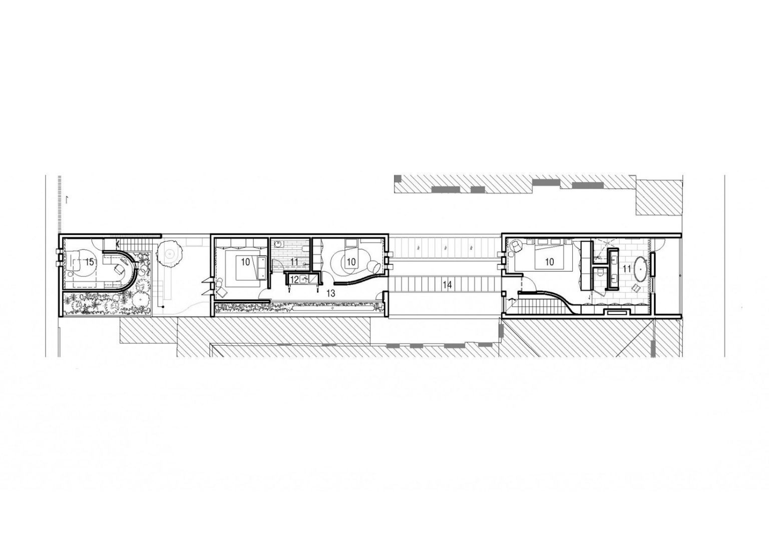
The Fitzroy Bridge house was recast into three distinct volumes spread across the site and separated by two internal courtyards to achieve the concept. The result is the fantastic formation of three different “pavilions” where the central pavilion features the main living area. The back pavilion features an independent studio above a laneway-accessible garage. While the two additional buildings at the back of the original house are leaning on the contemporary approach, the street-facing façade still retains the derivative of the old home’s Victorian-era classic feel. Moreover, the slender pair of windows with playfully curved hoods brings a smart integration but still addresses the function of shading requirements and privacy.
The interior of Fitzroy Bridge House is also an integral component of the overall design and renovation. Matt Gibson and his team creatively shift the materials and hues of the old house gradually as a transition from old to new. Deep-gray blue painted walls will welcome you in the formal front sitting room, while the dining area is painted in creamy white beige. These colors are reminiscent of the color palette and the color trend during the old house construction in the 1880s, celebrating the house’s history.
On the other hand, all new additions from the original are all painted crisp white. Another old-style yet a palatial feature of this house is the curved stair that rises from the dining room, giving a significant wow to the interior design of the house. Moreover, bespoke detailing of lightings, floors, and garden areas resulted in a remarkable outcome, another example of how old design can be combined with the new. Fitzroy Bridge House is definitely a perfect adaptation of a a beautiful reinvention.














