ASIA HOUSE: A Reinterpretation Of The Historical Maison Dom-Ino
Recommended Video
Jorge Marsino Prado and the team completes a residential vacation house in Lima, Peru that reinterprets Le Corbusier’s Maison Dom-Ino. It is a prototype house in the 1914s for mass-produced European housing. Horizontal concrete slabs, narrow pilotis or stilts, and stairways on the side initially make the structure of the Dom-Ino house. It has an open floor plan clear of load-bearing walls and supporting beams for the ceiling. This type of structural design is susceptible to a lot of modern interpretations and has been evident in twentieth-century architecture.
As a project Dom-Ino distils modern architecture to a set of guiding, abstract and idealised principles. This is a key reason why the ‘afterlife’ of Dom-Ino can still be seen and felt today, a hundred years later on.
Brett Steele, Director, AA School of Architecture, London
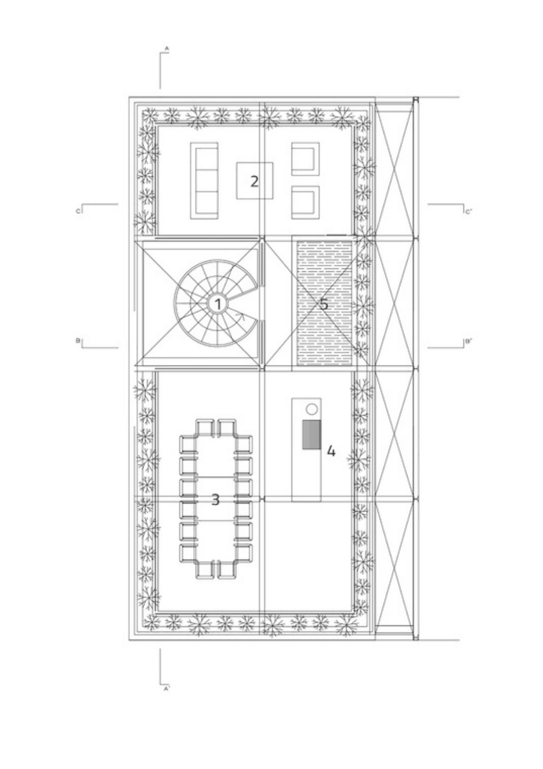
Guided by this concept, Jorge Marsino Prado designs a client’s home with his contemporary translation of the Dom-Ino house. The 303-square-meter house is located inside an artificial oasis. Building guidelines only allow the construction of one-story homes with a roof deck. The restriction provides homeowners equal opportunity to enjoy the space and the landscape view that the development has to offer. In compliance, the team constructs a one-story open floor plan structure with a roof deck and a basement.




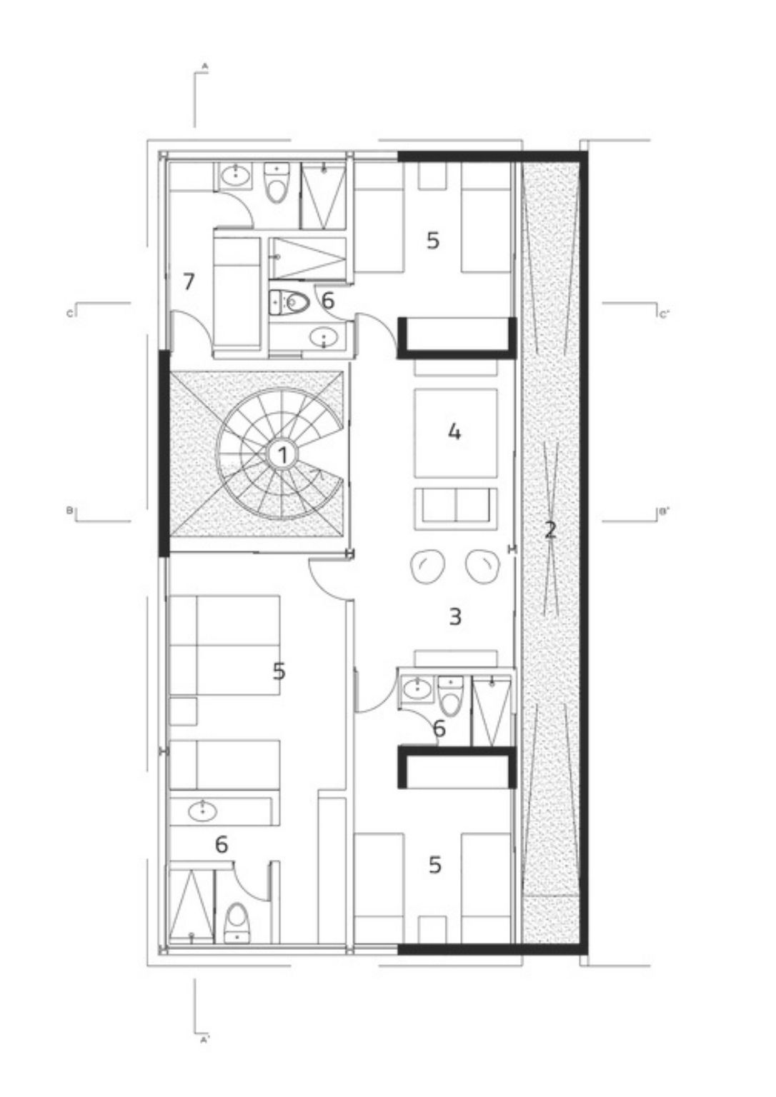
The main floor houses a lounge room, kitchen, and dining area. And in parallel with the Maison Dom-Ino design, the home has a stairway but is placed in the middle. The white spiral staircase element also provides an added aesthetic for the house. It becomes the focal point when all the wood sliders are closed. Access to the basement and the roof deck is through the staircase as well.
The rational expression that conveys the modulated order of the structure of iron columns and beams and lightened concrete slabs, as well as the secondary cladding elements, are balanced with the organic expression of the spiral staircase.
Jorge Marsino Prado
The vacation house hosts the client’s relatives and friends during vacation. Aside from the bedrooms on the main floor, more were provided in the basement as well as a dormitory. A recreational lounge area and outdoor dining make the rooftop.
Moreover, the floor-to-ceiling glass windows allow an ample amount of light into the home. The white and wood accents create warmth and add to the illusion of space. ASIA house exemplifies that proper structure and design should go hand in hand when creating structures with size and building restrictions.


Photo credits: Juan Solano Ojasi












