B Residence: From Sizeable Setback to a Beautiful Courtyard
Recommended Video
The necessity of self-isolation at home during the pandemic made everyone realize how it is important to have a comfortable and truly livable home. Even with the means and the opportunity to build the perfect home, knowing how to properly invest in a property and maximize its potential is a different story. Architects Luther Sim and Joy Sim, of Sim Ateliers, rose to the challenge of their project’s constraints, creating a design solution for B Residence that exceeded expectations.
The beloved property is situated along the public road of a private residential compound in the heart of Metro Manila. Being along the main artery, the prominent residence was required to maintain a regulatory setback from the road, an open area which occupied a large portion of the lot area. What was first seen as a weakness became the starting point of the whole design. The architects converted the setback into B Residence’s best asset: the spacious private courtyard garden, from which the residents can catch a relaxing glimpse of the lush green space. With its construction being completed in 2020, it’s a safe haven for the owners, allowing them to live in a house full of positivity in the midst of the unfavorable health situation in the country.
At first glance, the façade of B Residence evokes out Coco Chanel’s quote, “Simplicity is the key to elegance”. Neutral colors such as white and gray created a sophisticated blend with the black-framed full-height glass doors and windows. Materials with natural colors, such as the wood-grain finish ceiling spandrel and the natural stone wall cladding, combine with the green elements of the landscaping to create an airy, tropical vibe. Aside from being the perfect space for a courtyard, B Residence’s setback also provides much-needed space for privacy, not only from the main road but from the neighbors as well. Going through the foyer, residents and guests are welcomed by the open landscape exuding the overall luxurious atmosphere of the house.
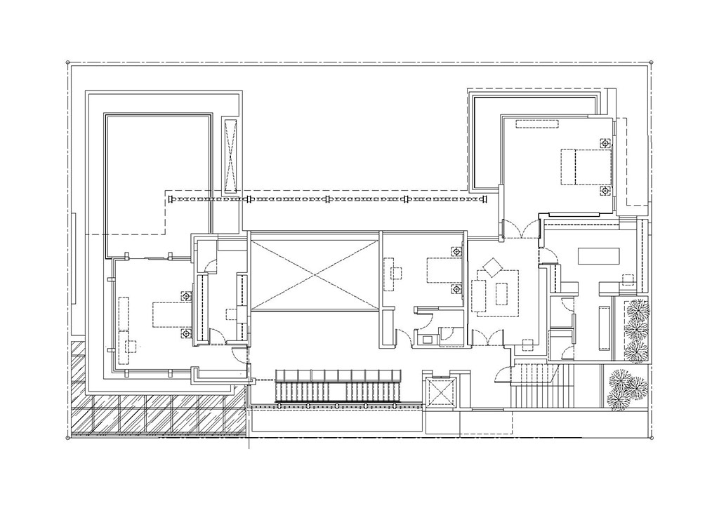
Through the foyer, residents and guests access the entertainment room on the left, while the right side directs you to the main living space. The ground level of the house contains common areas such as the living room, the dining room, kitchen, and service areas. The second and third levels are occupied by the bedrooms. Each room is designed with its own suite, complete with walk-in closets, own bathrooms, and balconies. As a treat to the principal users of the house, the master’s bathroom and walk-in closet also enjoy a view of an intimate garden inside without compromising privacy.
“Through careful study and analysis, we were able to create beautiful surprises and vistas as you experience B Residence. Not only the public spaces open up to the courtyard, but also the bedrooms, with filtered shading architectural elements. Wide openings and long overhangs allow the users to enjoy the design strategy.” Sim Ateliers shares. The architects express their ultimate goal with B Residence’s design: “Embracing the outdoors with the indoors is what we always have in mind when we strategize lovely spaces.”
B Residence has an innately sustainable architectural design, through its remarkable ways of allowing maximum natural light and ventilation to penetrate the interiors. Additionally, the architects built systems that use renewable energy where the rainwater is collected for the plants’ irrigation. The house was nominated for the best building of the year 2020, under the residential building category for ArchDaily Building of the Year 2020 Awards.








