This Fire-Red Indonesian Boarding House Reinvents the Co-living Experience
Ismail Solehudin designed the Stack By Step Red Zone building to facilitate co-living. The bold structure stands out from the surrounding urban landscape, and its intense red façade and stacked volumes hint at the structure’s most innovative feature: a central stair that maximizes the building’s capacity to offer both solitude and socialization.
Co-living: solitude and socialization
Affordable housing is in constant demand, and has become increasingly vital during the pandemic. With transportation at limited capacity, workers need practical and livable housing located near their job sites. Co-living, where residents have private rooms in addition to common areas, enables people to save income while living in convenient, safe, and comfortable housing.

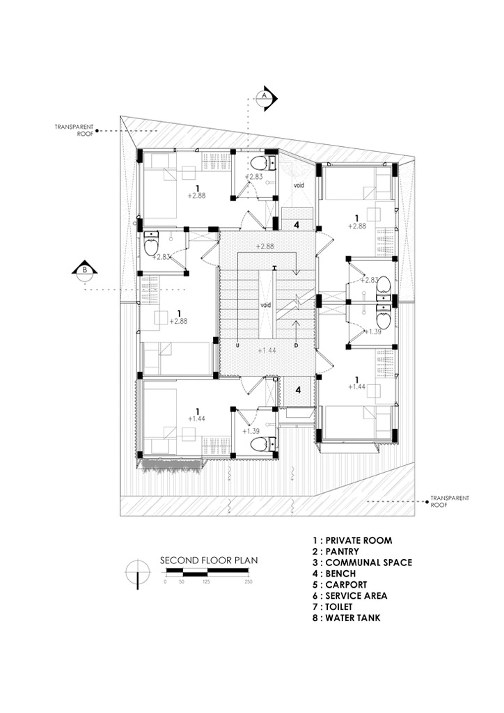
Equipped with compact yet comfortable rooms, the Stack By Step building maximizes every inch of available space. The 178 sqm. of built area includes 10-sqm. rooms and communal areas. The layout encourages people to enjoy sunlight and fresh air. With this inventive and resourceful design, social distancing does not have to result in social isolation. Individual rooms offer complete privacy, creating balance between the human need for solitude and socialization.
Inventive and resourceful design
This co-living experience was made possible despite the site’s location in a crowded urban area using the company’s unique concept: replacing the typical dormitory corridor with a central staircase, which serves as the building’s accessway and provides circulation for each unit.
The central staircase, a suspended structure made of steel and iron, is a bold architectural statement in itself. The pilotis of the staircase creates a sense of floating within the center of the structure, and the perforated steps allow fresh air and sunlight to pass freely through the central space from the skylight. It also frees space for service areas for the residents, including a parking area, communal space, food pantry, and laundry facilities.
The structure’s stacked volumes and fragmented roofs are representative of the building’s purpose, due to their resemblance to a mass of houses. The red metal and exposed brickwork of the façade are intended to interact with the tropical climate over time, lessening the need for maintenance expenses.
Co-living in the Philippines
Given Indonesia’s similar Southeast Asian climate and urban density, the Stack by Step building gives an idea of what the future of co-living in the Philippines may look like. Co-living is poised to be a thriving industry, but there are challenges that need to be addressed. Architecture demonstrates its ability to improve the quality of life and safety of workers, by creating structures that are adapted to the needs of modern living.








