Advertisement
Advertisement
Residential

RT+Q three-block family house interlinked by art and architecture

May 2, 2018
|
By 
Mark Denis Ong

Recommended Video

Tap to Unmute
Unmute
0:00
0:00 / 0:00
0:00

“Core values” is a term commonly heard from Fortune 500 companies with thousands of employees. Often, these ‘values’ are ambiguous words and phrases with a loose, abstract, or even bizarre relationship with what the company actually does.

Since 2003, RT+Q, an architectural firm with no more than 30 staff in their studio have been guided by their own set of architectural core values and in doing so, have emerged as one of Sinagpore’s pre-eminent architectural design houses. Since their establishment, their works have quickly become a fixture in Singapore and Southeast Asia’s architectural publications with an early focus on modern single family homes in Singapore.

Fast forward to 2016, RT+Q has now become a regional practice with works in Singapore, Malaysia, and Indonesia (among others) and a much broader range of building typologies.

One family, one home, three generations, three blocks: Sharing a common architectural character, each block retains its own personality, whether wrapped with privacy screens (Block B to the left) or using owner TK Quek’s impressive art collection to define the street-facing facade (Block A to the right). Says Quek, “I wanted to contrast the beauty, discipline, and character of Aung San Suu Kyi painted by Malaysian artist, Chong Siew Yin, with the ugliness of self-indulgence in the painting called Second Aunty by Chinese artists, Wu Gong.”

A counterintuitive approach

Partly to blow off steam, partly for team-building, but primarily for soul searching, since 2013, the firm began the practice of embarking on annual architectural pilgrimages. They have taken thier staff to the quarries of Spain and Portugal (2013), to the works of Palladio and Scarpa in Italy (2014), Le Corbusier’s in France (2015), and most recently to India (2016) for Le Corbusier’s latter works and the country’s temples, palaces, and stepwells.

Advertisement

According to Rene Tan and TK Quek, whose initials make up RT+Q, they do this to keep in touch with, refine, re-examine, and redefine the three core values of their work: scale + proportion, materials, and what they have come to call “a counter intuitive approach.” Of the three, easily the most intriguing and unique is the last: counter intuition—the quest to provide an element of surprise, to do the unexpected. The result is an element of curiosity, delight, and even fun that have since defined the work of RT+Q.

READ MORE: Shophouse by RT+Q becomes urban street lantern at night

Two black pools of water announce one has arrived at a home of tranquility and depth. Standing sentry at the resort-style open-sided pavilion and entry foyer, a bronze piece called Holicoide by a Spanish artist, Jesus Curia Reyes, welcomes guests with open wings.
A choreographed experience: The owner’s art collection is utilized to full effect as they are deployed to terminate vantage points as one journeys through the house. A sculpture greets visitors upon entry through the foyer.

The family as a determinant of scale

In 2015, design work was started on a house with a simple objective: to bring back a family together. The owner, an architect, was looking not just to build for himself, but also to get his son (also an architect) and his young family to move back in. He also wanted to ensure that his other son, based overseas, had a home base in Singapore for the holidays.

Advertisement

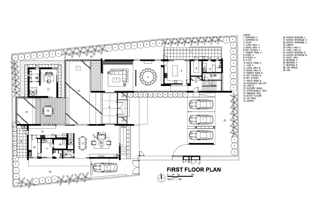
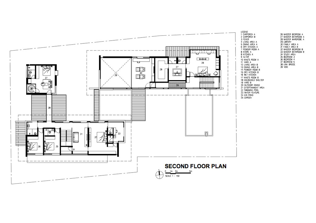
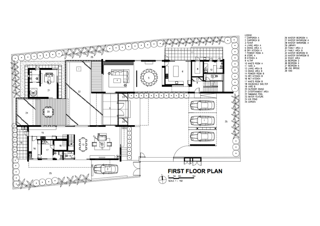
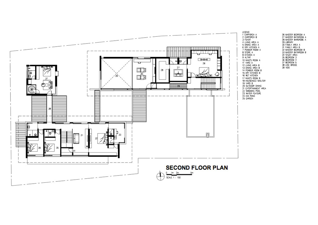
True to RT+Q’s core values, the solution was not to build a single, large house screaming for attention, but a series of elegantly-proportioned and interlinked pavilion-like blocks to cater to each ‘unit’ of the family: one for the patriarch and his wife (Block A), another for his son and young family (Block B) and a smaller, guest-cum-pool house for his overseas-based son (Block C). This allowed each house to cater to the specific needs of each family, allowing them privacy as needed, whilst still successfully bringing them together.

Family Picture: The individual blocks not only share a common outdoor space, they have also been configured to frame views into each others’ living rooms, yet another form of three-generational family bonding through space.
The red rhinoceros painting by Malaysian artist, Ahmad Zakii Anwar

Counter intuition at work

In many ways, the site plan is a demonstration of RT+Q’s counter-intuitive approach: located next to a high-rise condominium (abutting the northern boundary of the site), the expected approach would have been to push the house as far away from the condominium as possible, whilst placing as many barriers, visual or otherwise, from the house’s high-density next door neighbor.

After an analysis of the condominium’s layout, RT+Q instead does the opposite: Block A is instead pushed right next to the condominium plot to the site’s north eastern edge, allowing the owner to enjoy unobstructed views to its swimming pool. “Their landscape is now my landscape!” the owner jokingly but proudly said as he showed off the view to the next door condominium’s resort-style pool deck from his bedroom’s private study.

Advertisement
Space+Volume: A mechanized movable wall system showcases part of the owner’s painting collection in the double volume space of Block A’s living room. Antique furniture pieces add layers of richness to the house’s internal spaces. The works that are hung are by Malaysian artists, Ahmad Zakii Anwar and Kow Leong Kiang; Myanmar artist, Min Wae Aung; and Indonesian artist, Srihadi Soedarsono.
bluprint-architecture-rt+q-singapore-family-tropical-house
Since moving in, it has become a hobby of sorts for the owner to move his sculpture pieces around the house, surprising and delighting guests. He continues getting a kick out of using the piece with the the ladder called, Fix, by Chinese sculpture, Mu Boyan to give guests and even passers-by from the street the impression the house is still unfinished.

With Block A positioned at the north-eastern corner of the site, Block B is then positioned diagonally across to the south-western corner of the site. They minimally overlap with a covered linkway, which also functions as a semi-outdoor foyer. With their longer elevations oriented north-south, heat gain is minimized as their staggered placement from each other offers each house privacy whilst maximizing views and facilitating natural cross ventilation.

Landscape and a swimming pool fuse the two blocks together. Block C, clad entirely in greenery, except for a window pop-out which showcases a playful piece from the owner’s sculpture collection, with its small 36-square meter footprint, ‘disappears’ into the landscape.

READ MORE: Modernism meets Asian resort in Conrad Onglao’s C House

Art and material craft

The manner in which the site has been organized has also allowed each block to embody and very precisely meet their occupants’ needs.

Advertisement

With only two occupants, the owner and his wife, Block A has also become home to the family’s permanent guest: Art. Apart from regular wall space throughout the house, a double volume space and a mechanized movable wall system in the living room efficiently showcases the owner’s impressive art collection. In contrast, housing a young architect, his wife and their three young children, Block B exudes the feel of a family man’s home: homey, child-friendly, and easy-goingly comfortable.

Material Craft: Water, timber, aluminum, stone, glass, and greenery–the full palette of materials, whose application to the house was streated as craft is fully evident at every corner within and beyond the confines of the house.

Despite the contrasting programmes and spatial characteristics of each house, cohesiveness is achieved through the consistent application of materials that transcends the programs of the individual spaces. Evidence of the application of materials treated as craft is undeniable as one moves through the house’s many different spaces. Italian travertine and limestone and a variety heat-treated Asian timbers are not only applied but also showcase their natural beauty, giving a subtle richness and character to the internal spaces.

READ MORE: Artist Charlie Co keeps his passion for art alive in his art house

Objoect/Non-object: Block C, the guest house, is covered in greenery, making it the feature ‘object’ of the house’s central landscape space. Yet it is also this facade treatment that allows it to ‘disappear’ from the corner of one’s eye.

Externally, a volcanic basalt lava stone from China anchors each house’s first storey, whilst above, aluminium blades provide sun shading and offer privacy to each house. The clever use of lightweight aluminium (commonly used in Singapore as construction boarding material) is also used for the houses’ roofs and eaves to give the upper levels a sense of lightness, and carefully but subtly suggest the houses’ tropical context.

Advertisement

Core values and family values

Today, the house evokes a ‘moved into’ atmosphere, with spaces ceasing to be posed and styled for show-and-tell visits for the family’s guests, colleagues, and the architectural press. The smells of baking cupcakes and cookies waft through both houses. Children’s books and toys and other everyday items abound, and the owner’s sculptures are being playfully moved about, cleverly greeting, surprising, and delighting. For RT+Q, it is in this every day state where their architecture’s core values are revealed and crystallized. For the owner and his three-generation family, it becomes a reflection of their values.

Original articles first appeared in BluPrint Volume 2 2017. Edits were made for Bluprint online.

Download this month's BLUPRINT magazine digital copy from:
Subscribe via [email protected]

To provide a customized ad experience, we need to know if you are of legal age in your region.

By making a selection, you agree to our Terms & Conditions.