Barn-Inspired Bangkok Cafe is a Spot for Taking a Breather in Nature
It’s easy to see why cafes are among the most potent playgrounds for architects. More than just places for good food and drinks, they have become multi-functional spaces for work and play. As such, designers must put into consideration a number of different factors to bring various creative concepts to life. This is true for Take a Breath Cafe, which sits on an approximately 4,600 sqm site in Bangkok’s western suburb.
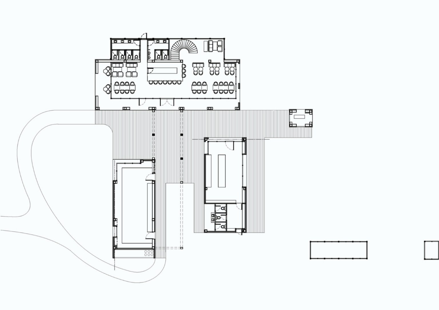
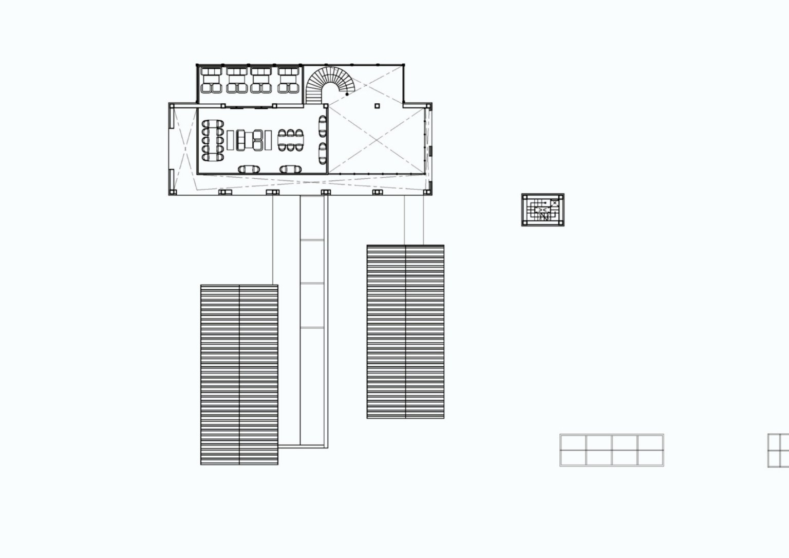
Surrounded by a high-density residential zone, the Bangkok cafe aims to bring people closer to nature through the barn-inspired buildings in a forested area. ASWA architects collaborated with Taste Space for the interior design to complete this creative vision. The design development ended up with a cluster of three main buildings to cover almost 500 sqm of total built area. The cafe, restaurant, and kitchen, along with the 13.5-meter high bell tower and two small glass houses all feature a gable roof.
The main restaurant, with its ground floor and mezzanine level as the main dining area, is oriented perpendicular to the kitchen. A roofed corridor connects the two buildings with the cafe. According to the architects, they had to design these areas as separate structures. This was because the restaurant already reached the size limit indicated in the building code of the area.
You may also like: Bangkok Project Studio’s Shining Hidden Treasure in Thailand “The Women Restaurant”
As such, they also needed to split the layout of the entire area into three parts. The front area serves as the parking lot. This in turn leads to the functional area, then the backyard area at the back. Wood-like metal sheets served as the main material for cladding the roof from all sides. Meanwhile, the arch-shaped openings complete the striking uniform look from the surrounds.
The architects also added arch-shaped voids randomly located in the built spaces. Among these is the corner of the central kitchen, which showcases the activities of the chefs. There’s also one in the back area of the main dining area and the cafe to provide diners with a view of the backyard.
With plenty of seating options, visitors can either stay indoors to enjoy the cozy interiors, or be surrounded by greenery against the predominantly brown exteriors of the buildings. The glass. houses also serve as an interesting combination of both, especially at night or for special occasions. Whichever they choose, the unique Bangkok cafe indeed looks promising as a relaxing spot for taking a breather.
Photography by Phuttipan Aswakool

























