Advertisement
Advertisement
Cafes

CTXT Cafe’s Minimalist Interior Offers Visitors A Quiet and Comfortable Space Experience

August 9, 2022
|
By 
Rick Formalejo

Recommended Video

Tap to Unmute
Unmute
0:00
0:00 / 0:00
0:00

Interpreting the client’s vision is a crucial part of a designer’s job. It can be challenging if the client is not specific in what they want for their space. For food establishments like cafes and restaurants, the overall aesthetic of the space plays a crucial role in boosting traffic and attracting customers. WUUT’s recent project was a cafe and restaurant in Gimpo-Si, South Korea which features dominantly white interiors with interesting play with texture and placement of objects.

The design team shares that in the initial project setup, the client provided vague requests. The client requested mostly a cafe style or a space that contained various contents with a lack of the building’s history and identity. The team decided to focus on the relationship between the placed objects in the space and the visitors more instead of focusing on a vivid concept. 

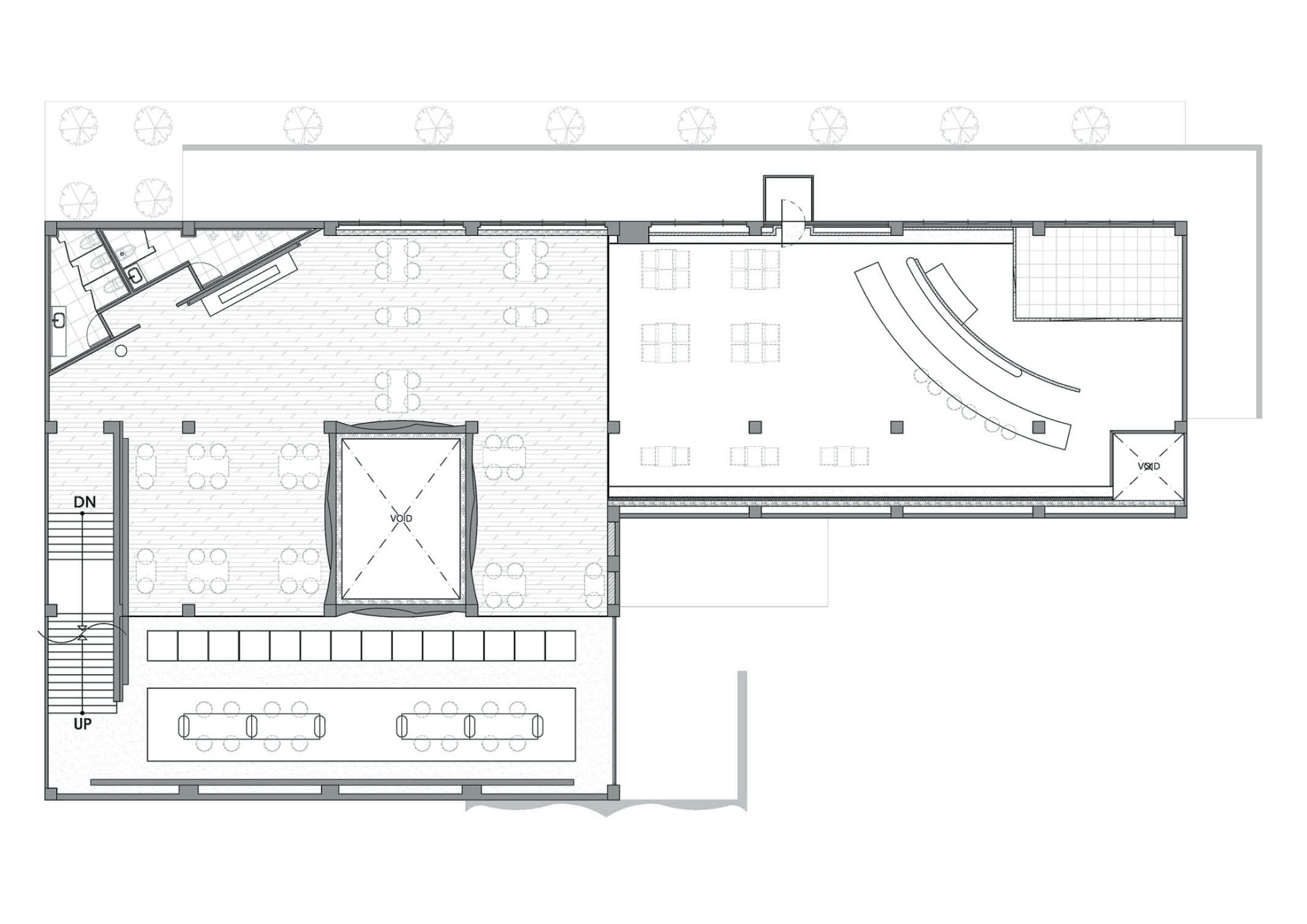
“CTXT” (Context) is a cafe and a restaurant. Since the space consists of two floors, the architect positioned the cafe on the first floor and a bar lounge on the second floor. When it comes to the overall spatial, the place features a simple structure that is straight and solid. It also has huge scalpels and rough textures that give visitors a strong impression. In contrast, the upper floor has a comfortable and soft atmosphere due to the colors used and slightly dark lighting.

The architect blurred the internal and external boundaries by replacing the exterior wall of the building with glass. It was set to sit facing the mirror installed on the exterior wall which allows visitors of the cafe see the entire room through the mirror while sitting in one direction.

Lastly, the massive wall in the center of the first and second floors is opened through the ceiling and extremely restricts other elements of the interior. The architect explains that the light and scenery filled in through the ceiling change depending on the seasons and weather which creates an unpredictable sensory experience for visitors. 

Advertisement

“Although CTXT lacks fancy artistic decorations, we always want to give visitors a quiet and comfortable space experience through a simple and comfortable space experience,” the architect shares.

Photos by: Teo Kim

Download this month's BLUPRINT magazine digital copy from:
Subscribe via [email protected]

To provide a customized ad experience, we need to know if you are of legal age in your region.

By making a selection, you agree to our Terms & Conditions.