Emerging Architects Studio’s Hybrid Office Meets New Normal Work Dynamics
Recommended Video
Truly, the past two years have brought so many things to mankind, both challenges and lessons. Life’s priorities have changed. Mindsets have transformed. Humanity’s attention to proper health care has elevated. Likewise, responding to the daily mundane tasks and attending to work adjusted a lot. Just like everybody else, the Emerging Architects Studio had to reevaluate the work program that will allow them to continue delivering quality design service to their clients. This has led the firm in creating its very own hybrid office that, take note, comes with a cocktail bar.

How the Hybrid Office Came About
According to EAST, the year 2020 was a challenge for the studio. Many changes happened that led the firm to move out of its old office space. Even if affected by the pandemic, the firm successfully transition from the old set-up to a work-from-home scheme. Subsequently, the firm realized having a physical office space is still vital. Thus it will also be better, especially when the world’s situation starts the new normal era. Fortunately, EAST found a new home at Lamp Quarters in Marikina.
“The Emerging Architects Studio hybrid office is the firm’s response to the changing nature and dynamic of how we operate as a design company during the pandemic,” shares the architects.
The location, Lamp Quarters, is a food establishment that houses different restaurants and cafeterias with alfresco areas. This setting combined with hybrid workflow, the architects opted for flexible office space – catering office work in the morning and transforming it into a social space in the evening. Also incorporated is a collaborative space in between. “By working remotely and redefining the processes of the firm, we were able to introduce a secondary purpose to our space, one that maximizes the potential of having and maintaining a physical location during these times,” the architects added.
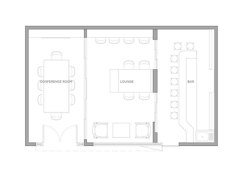
Design and Construction
During the planning stage, the spaces were divided according to the most basic functions needed to run as an office. This includes a conference room, a collaborative area, and a pantry. In the process, added are the spaces for the bar coming out with the final layout of three major spaces – the private meeting room, the lounge area, and the bar area. Installed in between are sliding glass doors creating distinct spaces and giving options for the privacy of use for various meetings or events happening simultaneously.
A dedicated office in the morning that transforms into a semi-hidden cocktail bar in the afternoon. The Bar by EAST is our group’s experiment in breaking norms on how companies work.
EMERGING ARCHITECTS STUDIO






The architects wanted to create a simple yet honest, functional design by bringing out material authenticity. Materials used were bare concrete finishes with curved edges, accents of salvaged wood, and plywood boards building an ambiance of being in a construction environment. A mirror wall behind the bar counter creates an illusion of added depth and space to the bar space. Carefully thought out but deliberately left as bare were the elements and materials used; a design aesthetic that’s a direct response to having an office space that opens to the public.
As a flexible and hybrid office space, the architects hold consultations online or by appointment in the physical office. And during evenings, all can enjoy the refreshing treats the Bar by EAST can offer. The project was completed in 2021.
Article Credits: Drawings and images courtesy of Emerging Architects Studio©









