Advertisement
Advertisement
Offices

South Korea’s S.A.L.T. House by S.E.E.D Haus Brings Light into Spaces

October 21, 2021
|
By 
Maria Rebecca Abaya

South Korea is one of the countries that is famous for its exciting pop culture which is also known as the Hallyu or the Korean Wave. Over the past two decades, through the popularity of its entertainment industry, the world started to dig deeper and learn more about its culture, fashion, language, food, and even architecture. The built environment has tremendously evolved from the heavy influence of the Chinese in their historical buildings, before and during the Joseon dynasty, to the colonial period under the Japanese, to the rebuilding during the post-war period, and to the post-modern architecture of the 21st century. Its capital city, Seoul, is now one of the most developed and highly urbanized cities in the world with its exquisite metropolitan skyline. Just around a 25-minute drive from the center of Seoul is the famous complex of Maiim Vision Village, where the recently completed S.A.L.T. House is situated. The area is known to house remarkable structures displaying the local depiction of contemporary modern architecture that’s mostly featured in different Korean dramas. To name a few are the Church of the Heart, designed by the renowned Tadao Ando, which can be seen in Park Seo-Joon and Park Min-Young’s What’s Wrong With Secretary Kim, and also the Drama House, which was used as the main home of Hyun Bin’s character in Secret Garden

A new addition to the stunning structures situated in the famous complex of Maiim Vision Village projecting harmonious coexistence with nature

The S.A.L.T. House, which stands for “Space for Air, Light, and Tree”, was designed to welcome and serve the visitors of the Maiim Vision Village. Designed by S.E.E.D Haus, the architecture took a strong lead from Louis Kahn’s “Light and Space”, which interprets that a room is not a room without natural light. “We wanted to create the spatial sensibility by utilizing the beauty of nature as much as possible and hoped that people could feel the changing time and environment through the light. This process would make this architectural space unique, and people could experience the pleasure of space that would be destined to be reborn all the time,” shares lead architect, Sanghoon Baek.

The clean symmetry of horizontal and vertical elements, together with muted finishes becomes dynamic as natural light passes through.

The façade showcases a clean contemporary architecture having used materials that highly encourage the entry of natural light into the building, such as the full-height glass panels and the metal louvers. These louvers not only allow natural light to come through but also create dramatic shadow effects. In addition, these louvers also allow passage for natural ventilation to penetrate the interior spaces. The raw polished concrete gives that authentic look that blends well with the surrounding greens. Another interesting feature is the zinc roofs wherein some parts are painted manually breaking monotony thus creating good harmony with nature.

Advertisement

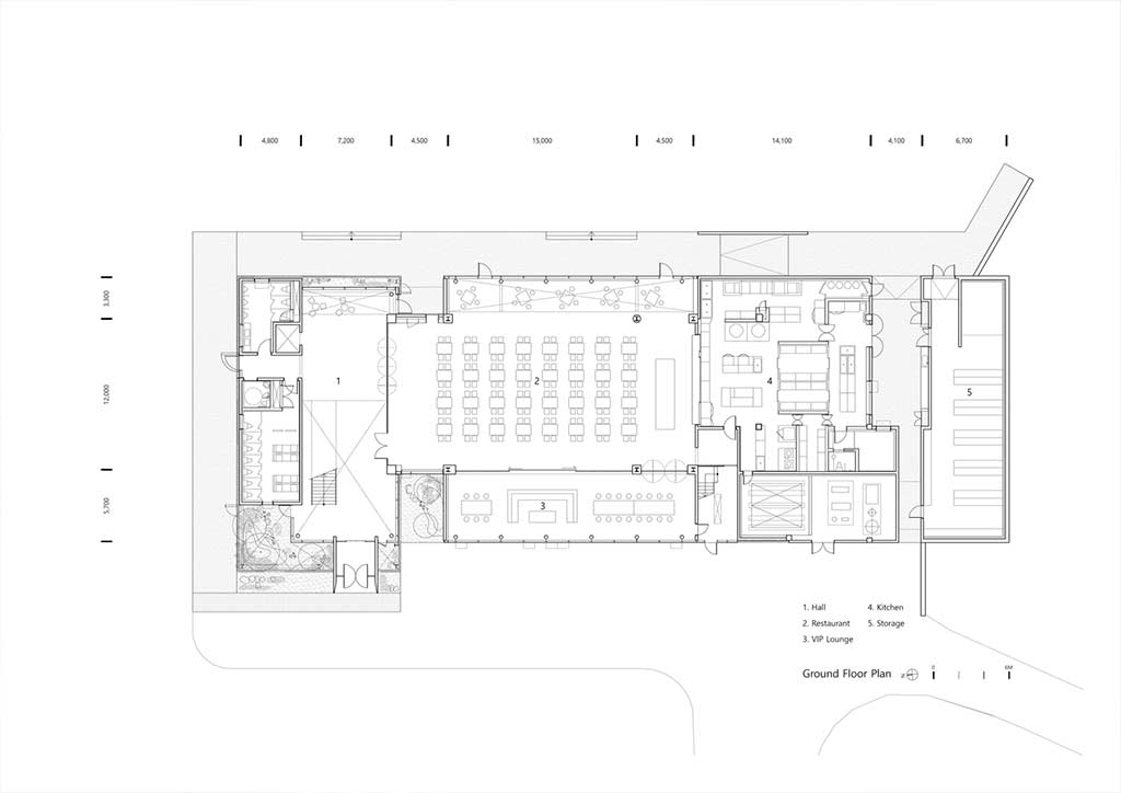
As a visitor center, the architects envisioned a dynamic structure where visitors can both enjoy the outdoor and indoor spaces and can easily access both areas, one is being nearby a playground area. The main entrance exhibits a double-height open ceiling hall with skylights under the louvers for that maximum natural light. Also present is the minimalist polished concrete stairs with timber handrail and glass railing. On the right are full-height operable glass panels that provide access towards the main restaurant. The ground floor also contains the VIP lounge, the main kitchen, and other services such as storage and the public toilets.

As playful shadows are created during daylight, at night, the lighting inside makes the building dramatically glow on the outside.

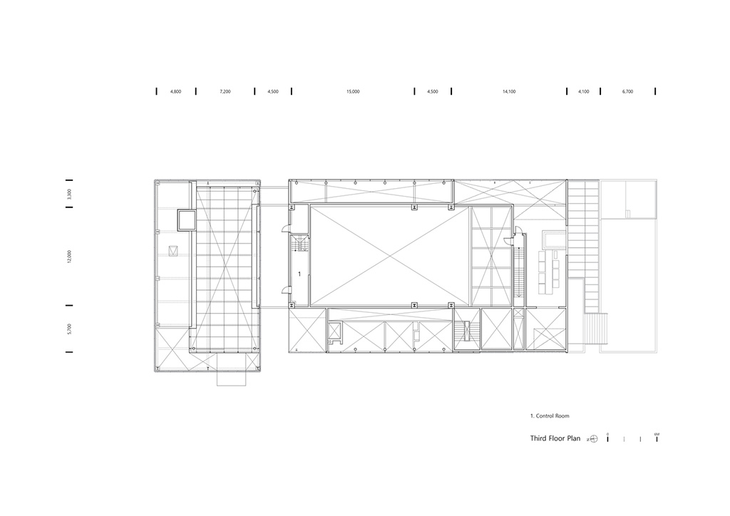
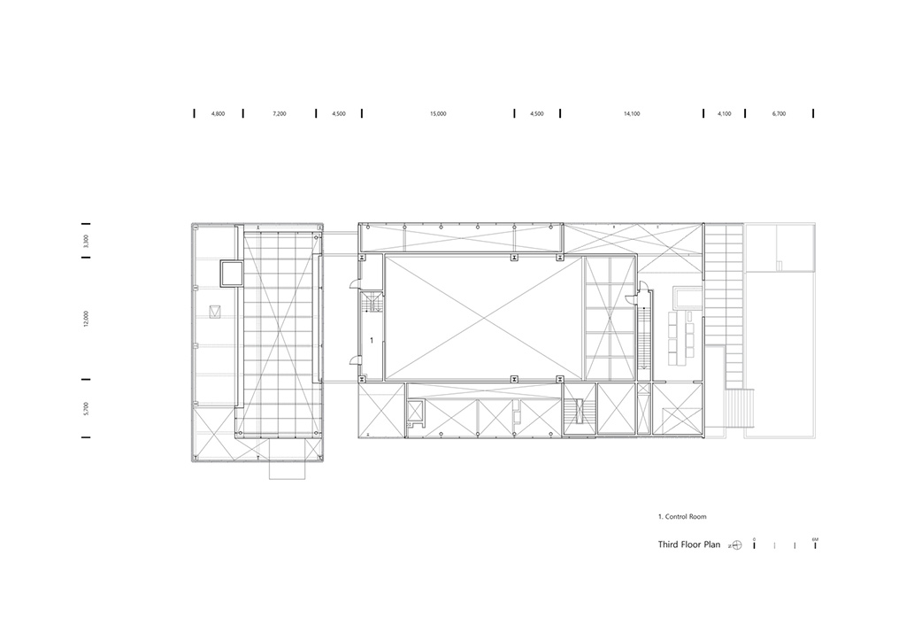
The S.A.L.T House’s incredible second floor spaces are the auditorium, make-up rooms, and the office spaces for the building administration. The auditorium is designed with a large column-free open hall making it a flexible space that can accommodate different events such as lectures or concerts. Whenever there are no events happening, curtains can be easily tucked to the sides to allow natural light to come in and also for visitors to have a glimpse of the beautiful landscape outside. During events, organizers and/or performers can prepare at their designated make-up rooms, and they also have different access to not encounter the rest of the visitors. 

The addition of the project in Maiim Vision Village only suggests that the Hallyu fever is still on and that this entertainment industry will continue to give good quality shows especially in today’s situation to somehow lessen the worries and ease the loneliness of the people. And there will always be a big possibility that soon we will see the S.A.L.T. House in one of their shows.

Advertisement

Article Credits: Drawings courtesy of S.E.E.D Haus; Images courtesy of Kyung Roh ©

author avatar
Maria Rebecca Abaya
Download this month's BLUPRINT magazine digital copy from:
Subscribe via [email protected]

To provide a customized ad experience, we need to know if you are of legal age in your region.

By making a selection, you agree to our Terms & Conditions.