Advertisement
Advertisement
Residential

Tatuí Apartment: Asian Zen in the Heart of Urban Brazil 

May 6, 2024
|
By 
Albert Aycardo

Recommended Video

Tap to Unmute
Unmute
0:00
0:00 / 0:00
0:00

The Tatuí apartments fuses Japanese-inspired minimalism with contemporary living. Designed by Passos Arquitetura, this interior space hosts a variety of captivating elements within its walls. Its meticulous attention to detail, blends of nature and light ambience forms a serene oasis amidst the bustling city. 

Taking Inspiration from Japanese Concepts.

The Tatuí apartments primarily subscribe to two concepts of Japanese design. These are “Tsuboniwa” and “Shakkei”. The designers adapted these motifs into the context of a South American home. In doing so, they were able to capture a strong sense of nature despite the apartment settings of the project. 

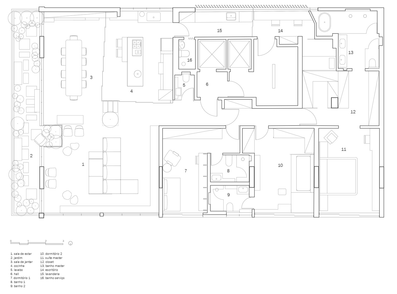
“Tsuboniwa” is a small garden typology and is often used as a courtyard inside homes. Traditionally, these spaces measure around 1×1 ken or the size of two tatami(sleeping mats). It’s likened to a room without a roof, an intimate exposure of the dynamic character of nature. The apartment houses its garden within the social area as it attaches between the living room, dining room, and kitchen. 

Advertisement

“Shakkei”, or borrowed scenery, is a landscaping technique that aims to integrate the forms of distant landscapes into a garden’s design. It creates visual continuity as it creates the illusion of connection between far-off places. Framing views within one’s own garden achieves this effect. In this case, the tree outside the balcony is used as a reference point. 

Crafting Asian Zen Interiors

In line with these Japanese landscaping concepts, the designers also opted to utilize Asian Zen concepts into the interiors. Firstly, the open floor plan allows for an easy flow of movement and connection between these spaces. Built-in cabinetry and storage solutions blend in as they maintain a clutter-free environment. Furthermore, every item has its designated place which allows the beauty of the minimalist stylings to shine through. 

Achieving this is a collection of custom furniture that harmonizes with the overall aesthetic. A bespoke sofa acts as a centerpiece of the living space. The dining table was built using traditional Japanese joinery techniques. These elements not only provide functionality but also play a role in expressing the apartment’s pattern, strengthening the cohesivity of the design. 

Advertisement

Within the shared spaces, biophilic design is heavily integrated alongside a large amount of natural light. Clean lines and neutral colors add to a sense of order and calm. Some decorative elements, such as the patterned rug, softens the bareness of the minimalist aesthetic. Meanwhile, the kitchen features a large island for additional counter space and seating. 

Bedrooms continue the theme of space efficiency and cleanliness with floating beds and shelves. Playful ornamentations, shaped like a tree, adds a more welcoming touch alongside the makeshift ball pit. The bathrooms have a modern spa-like design with its bare material finish.

Setting Up Better Living 

Bringing all of these themes together is a color scheme that echoes the power of simplicity. Light and neutral tones evoke a sense of tranquility. The smoothness of white surfaces is contrasted by the natural textures of wood and stone. The tsuboniwa shines as its vibrant hues alongside the shakkei’s borrowed views stand out. The interplay of light and shadow, facilitated by the wide windows, invigorates the interiors with its dynamic movement. 

Advertisement

The Tatuí Apartment takes inspiration from other cultures and harmonizes it with its own context. Incorporating Japanese design concepts, the architects manage to achieve a simple and yet elegant design by its excellent content. The result is a light-filled natural sanctuary amidst this residential complex in São Paulo, Brazil. 

Read more: 5 Minimalist House Designs Prove That Less Is More

Photo credit: André Mortatti

Graphics and plan by Passos Arquitetura

Abstract metal sculptures on white pedestals arranged in an industrial gallery setting.

Anton V. Quisumbing Returns to Sculpture with at Yuchengco Museum

Pasulong by Anton V. Quisumbing explores loss, longing, and repair. Two years in the making, Quisumbing pieced together the remains of bronze propellers from boats damaged in the aftermath of Typhoon Odette in 2021.  Curated by Miguel Rosales and designed by Caramel Creative Consultancy, the exhibition consists of twenty-nine compositions. The works suggest that moving […]

Advertisement
SoFA Design Institute Partners with IE University to Expand Opportunities for Filipino Design Students

SoFA Design Institute Partners with IE University to Expand Opportunities for Filipino Design Students

SoFA Design Institute has established itself as one of the Philippines’ leading centers for creative education. It is dedicated to equipping students with the skills, perspective, and confidence needed to succeed in design both locally and internationally. Last March 11, this vision was brought into sharper focus through the launch of SoFA’s academic partnership with […]

Ortigas Land Launches Costa Calatagan, An All-Villa Resort & Residential Property

Why Design-Led Resi-Resort Living Is Redefining the Second Home

Second homes have shifted from occasional escapes to extensions of everyday life. Increasingly, they are expected to offer the same level of comfort and clarity as a primary residence—while remaining within reach. In this context, a new type of development is emerging: the design-led resi-resort. In Calatagan, Batangas, Costa Calatagan introduces Ortigas Land’s first coastal […]

Two construction workers in yellow high-visibility vests kneel and inspect a concrete slab on a building site, with heavy machinery in the background.

The Future of Automation: How Magis X is Transforming Philippine Construction with Robotics

Based on an August 2025 report from Research and Markets, the Philippine construction industry is facing a severe labor deficit driven by a widening skills gap. This leaves many projects vulnerable to human error, delays, and coordination challenges. In a country struggling with the slow adoption of advanced technology and a shortage of skilled labor, […]

Advertisement
Filipino Designer Bianca Carague, Technospoonism, Milan Design Week 2026

Technospoonism: Bianca Carague Reimagines Kamayan as Avant-Garde Dining at Milan Design Week 2026

In a platform that aims to overturn hierarchies and reimagine societies, a Filipina designer secures a spot at Milan Design Week. This proves that Kamayan, the traditional Filipino practice of communal eating by hand, can be recoded into a futuristic ritual. Every Milan Design Week, BASE Milano becomes a ground for eccentric ideas, transforming into […]

Cafés in Katipunan, third spaces, NoDoze

3 Cafés in Katipunan Redefining the Third Space

Cafés are a prominent feature in the social lives of Filipinos. In Katipunan, they are found on almost every corner. Beyond the mall, the café is one of the most dominant forms of a third place in the Philippines. In Metro Manila, where green spaces and public libraries are sparse, and in-between, cafés have to […]

Download this month's BLUPRINT magazine digital copy from:
Subscribe via [email protected]

To provide a customized ad experience, we need to know if you are of legal age in your region.

By making a selection, you agree to our Terms & Conditions.