Contemporary design refers to the constantly evolving design trends of today. With the power to design our built environments, architects have been experimenting with various architectural approaches. Whether that is through unconventional forms or the integration of smart technologies, BluPrint lists down Filipino architects who are defining contemporary architecture. Deo Alam Architect Deo Alrashid Alam […]
Na Tanao 1969: Fitting In the Narrowest Building in Thailand
In the Phra Nakhon district of Bangkok, which sits on the eastern bank of the Chao Phraya, one may find the historic and older charm of Thailand’s capital. The Royal Palace and Wat Pho in the district are quintessential Thai landmarks. The surrounding buildings are older and grittier compared to their plusher Sukhumvit counterparts. It’s a wonderful surprise then to come across a “hometel” (a home and hotel hybrid) named Na Tanao 1969, which, according to its architect, is the tightest building in Thailand.
“Na Tanao is the narrowest building in Thailand if we do not count watchtowers and pavilions,” Principal Architect of POAR Patchara Wongboonsin clarifies.
Building Smart on a Skinny Plot

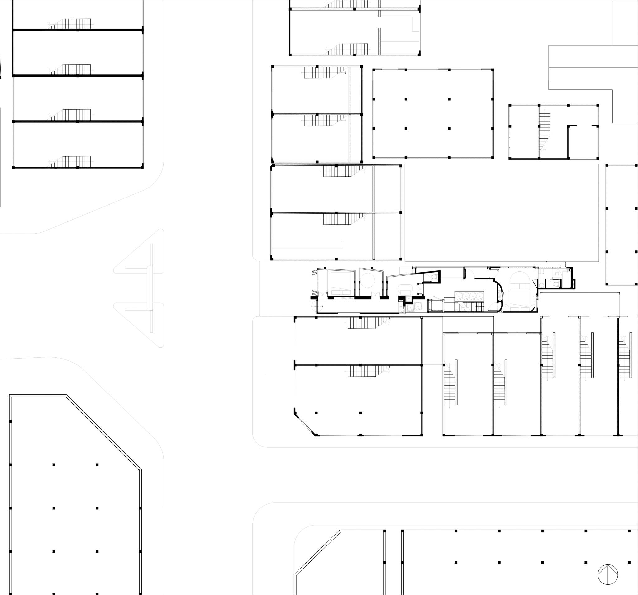
Na Tanao 1969, which opened in 2022, is built on a skinny plot that is five meters wide and 20 meters long. The building itself is built only on a 3.5-meter-wide footprint to allow for setbacks. It stands 16 meters tall. Owned by Jitrapat Israngkura Na Ayudhya (known by his nickname, Name), the plot where the building stands now was a driveway that led to a larger home in the past. Longed to be thought of as a useless piece of land because of its unusual shape, Name brought his vision to life with the help of Bangkok-based architectural firm POAR.

“Since the beginning of our career, we only get challenging lot sizes and shapes. Na Tanao was the hardest during that time,” says Wongboonsin. “After we saw the site, we knew right away that this building would become the narrowest building in Thailand.”


Situated right in front of Phraeng Sanphasat Gate, which features a brick base and a Greek goddess holding a lamp flanked by stained glass, the hometel rents out four rooms and reserves one room as the owner’s residence. The color of the stone tiles that clad Na Tanao was carefully chosen to match the patina of the adjacent buildings.
Merging Modern Design with Historic Context

As guests climb the stairs to the lobby, they’re enveloped immediately by warm timber on the walls and ceiling. The wood paneling on the left side can be pulled back like a curtain to ventilate the space naturally. Decorated with the owner’s personal items and furnished with wooden consoles and lounge chairs, the lobby exudes a cozy vibe that puts guests at ease. Vintage turntables line one console and play soft music from vinyl records throughout the day.
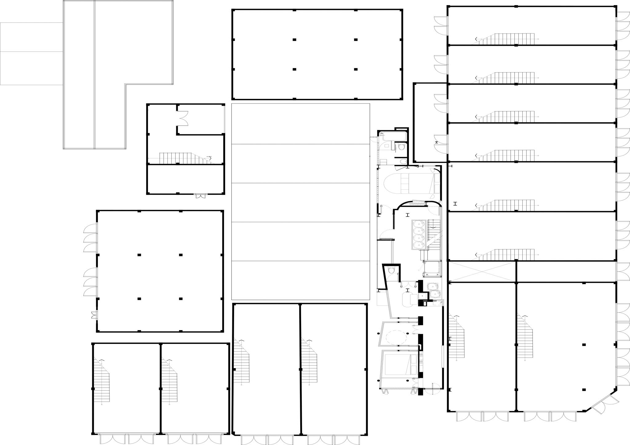
Surprisingly, there is a four-person elevator that services the lobby all the way up to the roof deck. It comes in very handy when bringing up guests’ luggage. The third and fourth floors comprise two rooms on both ends and share an open-air common area. “We wanted to build a building that has 50% open-air space. We are inspired by the vernacular house in the central region of Thailand that has a large terrace with small rooms scattered on it,” Wongboonsin explains.



Each common area acts like a terrace and opens either to the adjacent building’s patinated wall or to the rooftops of the surrounding buildings, depending on which level you’re on. This arrangement adds context and charm to the experience. Wongboonsin ensured that wherever you are in the hometel, you are always aware of which part of Bangkok you are in. “We created many openings toward the neighbor’s wall and used the surroundings as the user’s visual boundaries.”





The Jira room on the third floor has a long hallway with a window to the neighbor’s wall that acts like a framed abstract painting. At the end of the hallway is a round window with a view of the Phraeng Sanphasat Gate across the street.
Innovative Solutions for a Narrow Site
Wongboonsin discovered that there were benefits of building on a narrow site. “The surrounding buildings block the harsh sunlight almost completely throughout the day, giving [the hometel] a comfortable temperature. We want to emphasize that. There is also better wind flow because the gap between Na Tanao and the adjacent buildings acts like a wind tunnel.”
The roof deck on the sixth floor has a sunken seating area clad in Hopea odorata wood, which has turned silver under the sun and rain. Like teak wood, Hopea odorata is resistant to termites and is suitable outdoors. With the view of the old city of Bangkok on the sixth floor, you are again reminded of where you are.
There were a lot of considerations when constructing Na Tanao 1969. Steel and other materials were fabricated offsite to lessen the noise during construction and cut down on the building time. Before that, they also needed to convince the neighbors regarding the construction. “The relationship of the landlord and the neighbors might be greater than the rules and regulations,” says Wongboonsin. “Since the owner grew up in this area and knew almost everyone around the neighborhood, they all allowed it.”





One may observe that Na Tanao 1969 is set further back than the rows of shophouses next to it. This positioning was intentional so that Na Tanao 1969 could almost disappear into the neighboring buildings.
Although the plot size was unusual and very challenging to work with, being the narrowest building in Thailand was not Na Tanao 1969’s only triumph. It is a testament to how design can help gently usher the modern into a place full of history. The two can coexist and can be a living dialogue between the two.
Photographed by Jar Concengco. Elevations provided by POAR.
Read more: Ishinomaki Home Base: A Hybrid Space In Coastal City Of Ishinomaki Pursues Simplicity



























