Advertisement
Advertisement
Restaurants

Ajuala Restaurant: A Culinary Haven Crafted with Local Flair

April 22, 2024
|
By 
Albert Aycardo

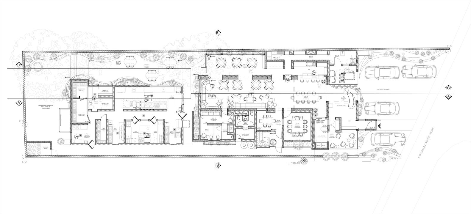
The Ajuala Restaurant creates a unique dining experience for its patrons through architecture and culinary artistry.  Portafoglio Grupo Arquitectónico + Grupo HCR forges a design that reflects the tastes of Chef Saverio Stassi. A contemporary sensibility accompanies a rustic charm that cooks up a destination to satisfy food enthusiasts and design aficionados alike. 

A Home Cooked Design

Located in the Dominican Republic, the Ajuala Restaurant is a repurposed residential house. The designers converted the existing structure while still keeping the characteristics of the previous home. It does this in a manner that meets with the needs to run a restaurant, using elements ranging from ambient yearnings to functional requirements. Doing so adds a compelling sustainability component to the project as it reduces the need to construct from scratch.

The restaurant proudly displays what it has to offer. Its design features local craftsmanship and materials that mirrors the flavors and cultural roots of its cuisine. A portico framed with aged steel tola announces the restaurant’s entrance. It stands tall as a modern element against the rustic backdrop formed by the thatch roof and ashlar finish. The building’s profile is rectangular and uniform in shape, putting these elements in the spotlight.

Advertisement

Alongside this, a wide variety of greenery stretches across the building’s frontage in a manner that softens the architecture. Additionally, a sleek windows reveals an irregular shelf of mixed openings that gives onlookers a sample of what to expect inside.

Mixing Rural and Modern Design Ingredients 

An inviting ambience formed by the Ajuala Restaurant’s interior design greets patrons. Rustic and modern design elements fuse together in homage to Dominican architecture. The straw-like ceiling is contrasted by sleek wooden finishings in conjunction with textured stone. An elegant choice in custom furnishing and art pieces further cements this effect. 

A strategic lighting plan uses sculptural dome pendant lights that highlight focal points in conjunction with track lighting over each table. Traditional Dominican wood block molds inspire the back bar shelving design. The flooring appears to be a classic pattern of herringbone wood planks. Different seating arrangements offer unique views, from the site’s greenery to the dynamic work seen from the open kitchen. 

Advertisement

The single story elevation of the structure supports mobility and visibility requirements for managing a dining experience. An open layout connects the reception, bar, and the main dining room. At maximum capacity, a total of 40 guests can be accommodated. A sense of spaciousness is achieved through the wide floor-to-ceiling windows that are framed by perimeter gardens and walls. 

Celebrating Dominican Flavors

The Ajuala Restaurant clearly reflects the environment that its chef wishes to create for his customers. It’s a clear expression of different aspects of cooking, whether it be in its cultural references, functional requirements, or the framing of the experience. The designers achieve this by a strong design concept that reinvigorates traditional Dominican flavors. This place utilizes the practices of modern day dining in tangent with local craftsmanship and materiality. 

Read more: Madi Hiyaa: An Overwater Bamboo Restaurant

Photo credit: Onnis Luque

Full view of the Bihing Tahik Resort

Filipino Architects Whose Work Is Defining Contemporary Design 

Contemporary design refers to the constantly evolving design trends of today. With the power to design our built environments, architects have been experimenting with various architectural approaches. Whether that is through unconventional forms or the integration of smart technologies, BluPrint lists down Filipino architects who are defining contemporary architecture.  Deo Alam Architect Deo Alrashid Alam […]

Advertisement
Balay Yatu’s design at Museo Pambata blends colonial influences with local elements, reflecting Filipino heritage.

Adaptive Reuse Projects Shaping the Future of Philippine Architecture

In the Philippines, adaptive reuse gained traction during the 1970s with the rise of conservation and environmental preservation movements. It offered an architectural solution that reuses existing spaces to fit modern needs. Across the country, several projects demonstrate how this approach is being applied—transforming heritage structures into active spaces for culture, hospitality, and community life. […]

lighting design

Why Lighting Design Is Becoming Central to Interior Design 

From residential spaces to civic structures, lighting dictates the mood of a space. It controls the visual dynamics of an interior, serving as a guiding tool that highlights key design elements, including materials and textures. Related Reading: Lampscaping: How to Light up Your Home like a Pro Regulating the Mood: Natural and Artificial Light in […]

Interior Design for Small Spaces

Condo Interior Design Ideas That Make Small Spaces Work Harder

More and more Filipinos are flocking to condominium communities. Often tucked within busy city centers, condo living acts as a small respite from urban chaos. Faced with the challenge of transforming a cramped condominium into a warm living space, BluPrint lists condo interior design ideas that can maximize each square foot of small spaces. Purposeful […]

Advertisement
SANITEC / JOMOO

How Smart Technology Is Transforming the Modern Bathroom

Modern bathrooms are no longer purely functional spaces. Increasingly, they are being designed as environments that support cleanliness, ease, and quiet restoration within the home. As daily life becomes more demanding and health awareness continues to rise, homeowners are beginning to expect more from the spaces where daily rituals begin and end. For architects and […]

restaurant interiors

Restaurant Interiors in Manila That Show the Power of Design

From the moment a diner steps through the door, each detail shapes how a meal is experienced. Restaurant design has evolved, with architects and culinary professionals collaborating to create built spaces that are as intentional as the menu itself. The spatial atmosphere acts as an additional ingredient that can define the culinary experience.   Taupe and […]

author avatar
Albert Aycardo
Download this month's BLUPRINT magazine digital copy from:
Subscribe via [email protected]

To provide a customized ad experience, we need to know if you are of legal age in your region.

By making a selection, you agree to our Terms & Conditions.